For Sale By Auction | 09:30, 16 October 2025 | Lot 17

40B Oval Road, East Croydon, Surrey, CR0 6BJ

*Guide | £90,000+ (plus fees)

  • Flat
  • 1 Bedroom
  • Tenure: Leasehold. The property is held on a 99 year lease from 14th November 1973 (thus approximately 47 years unexpired).

Call the team on 020 7625 9007 for more information

Auction Date

Thu 16/10/2025

Auction Time

09:30

Auction Venue

Live Stream

A Lower Ground Floor One Bedroom Flat Subject to an Assured Shorthold Tenancy Producing £10,200 Per Annum

The property comprises a lower ground floor one bedroom flat situated within a mid terrace building arranged over lower ground, ground and first floors.

Tenure

Leasehold. The property is held on a 99 year lease from 14th November 1973 (thus approximately 47 years unexpired).

Location

The property is situated on a residential road close to local shops and amenities. The open spaces of Addiscombe Recreation Ground are within easy reach. Transport links are provided by West Croydon overground station and East Croydon rail station.

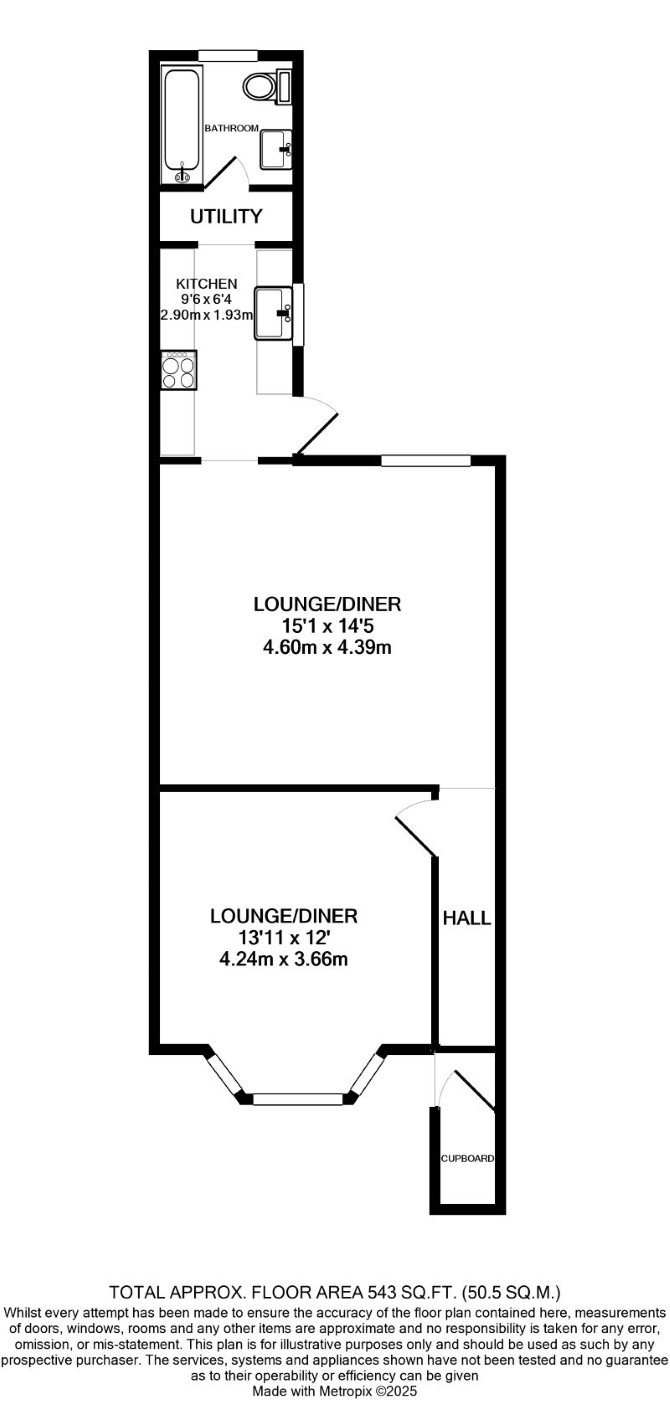
Accommodation

Lower Ground Floor Reception Room Kitchen Bedroom Bathroom GIA Approximately 543 sq ft

Exterior

The property benefits from a private rear garden.

Tenancy

The property is subject to an Assured Shorthold Tenancy for a term of 12 months commencing 1st July 2022 at a rent of £850 per calendar month (Holding Over).

Further Information

When purchasing a flat that has a short lease, it is important to understand that in addition to the purchase price, if you wish to extend the lease to 90+ years, you will need to pay a premium to the freeholder. This is done by way of serving a Section 42 notice to the freeholder requesting a lease extension with a suggested price for the extension. The freeholder has the right to refuse the offer and submit a counter notice with their suggested price. If you do not fully understand this process, please ask the auctioneers or a solicitor.

Energy Efficiency Rating (EPC)

Current Rating D

Services

Interested parties are requested to make their own enquiries to the relevant authorities as to the availability of services.

Important Notice to Prospective Buyers:

We draw your attention to the Special Conditions of Sale within the Legal Pack, referring to other charges in addition to the purchase price which may become payable. Such costs may include Search Fees, reimbursement of Sellers costs and Legal Fees, and Transfer Fees amongst others.

Additional Fees

Administration Charge - Purchasers will be required to pay an administration fee of £1,500 inc VAT

Disbursements - Please see the legal pack for any disbursements listed that may become payable by the purchaser on completion.

View Larger Map

Disclaimer: The map preview provided above is for general guidance only and may not accurately reflect the exact location or surrounding buildings. Prospective buyers and interested parties are strongly advised to independently verify the precise location and surroundings before bidding.