For Sale By Auction | 09:30, 16 October 2025 | Lot 99

Flat 24 Daver Court, Chelsea Manor Street, Chelsea, London, SW3 3TS

*Guide | £50,000+ (plus fees)

  • Flat
  • 2 Bedrooms
  • Tenure: Leasehold. The property is held on a 46 year lease from 16th December 1982 to 20th March 2028 (thus approximately 2 years unexpired). At the buyer's request and costs a section 42 notice to extend the lease will be served prior to completion, the rights of which would be assigned to the incoming buyer.

Call the team on 020 7625 9007 for more information

Auction Date

Thu 16/10/2025

Auction Time

09:30

Auction Venue

Live Stream

Viewing Times:

Tue 7 Oct

10:00-10:30

Thu 9 Oct

10:00-10:30

Sat 11 Oct

12:15-12:45

Mon 13 Oct

10:00-10:30

Wed 15 Oct

10:00-10:30

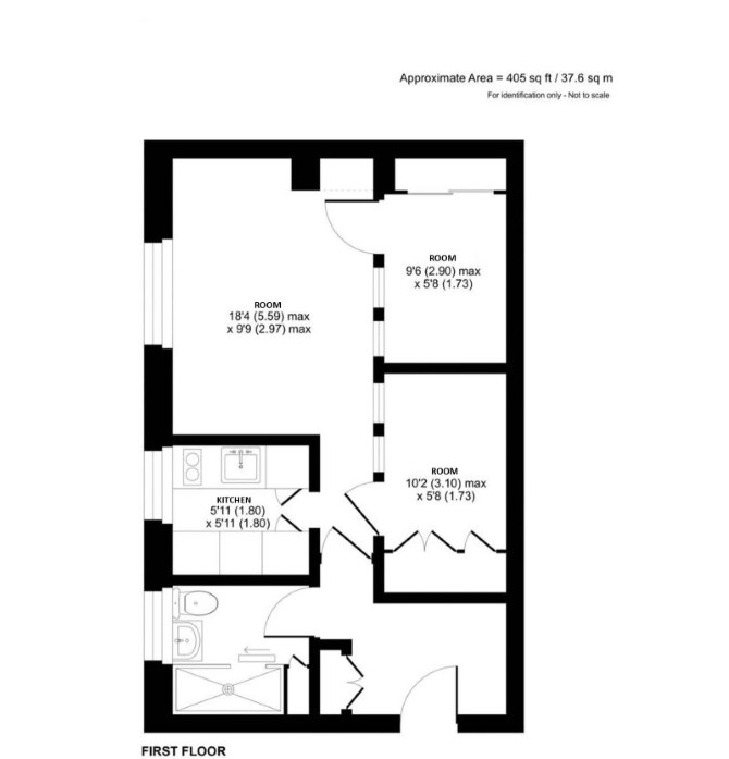
A Well Located Vacant First Floor Flat

The property consists of a first floor flat with three rooms, located within a purpose-built block arranged over the ground floor and four upper storeys. It was originally configured as a studio flat, but has since been converted by the seller into a three-room layout without obtaining the required consents. Prospective buyers are advised to carry out their own due diligence and enquiries.

Tenure

Leasehold. The property is held on a 46 year lease from 16th December 1982 to 20th March 2028 (thus approximately 2 years unexpired). At the buyer's request and costs a section 42 notice to extend the lease will be served prior to completion, the rights of which would be assigned to the incoming buyer.

Location

The property is situated in the highly sought after area of Chelsea. It is situated on a road close to local shops and amenities. The open spaces of Ranleigh Gardens are within easy reach. Transport links are provided by Sloane Square underground station (Circle and District line).

Accommodation

First Floor Three Rooms Kitchen Bathroom

Please note, the seller has converted the property into a three room flat without obtaining the necessary consents. Buyers are deemed to rely on their own enquiries.

Further Information

When purchasing a flat that has a short lease, it is important to understand that in addition to the purchase price, if you wish to extend the lease to 90+ years, you will need to pay a premium to the freeholder. This is done by way of serving a Section 42 notice to the freeholder requesting a lease extension with a suggested price for the extension. The freeholder has the right to refuse the offer and submit a counter notice with their suggested price. If you do not fully understand this process, please ask the auctioneers or a solicitor.

Energy Efficiency Rating (EPC)

Current Rating C

Services

Interested parties are requested to make their own enquiries to the relevant authorities as to the availability of services.

Important Notice to Prospective Buyers:

We draw your attention to the Special Conditions of Sale within the Legal Pack, referring to other charges in addition to the purchase price which may become payable. Such costs may include Search Fees, reimbursement of Sellers costs and Legal Fees, and Transfer Fees amongst others.

Additional Fees

Administration Charge - Purchasers will be required to pay an administration fee of £1,500 inc VAT

Disbursements - Please see the legal pack for any disbursements listed that may become payable by the purchaser on completion.

View Larger Map

Disclaimer: The map preview provided above is for general guidance only and may not accurately reflect the exact location or surrounding buildings. Prospective buyers and interested parties are strongly advised to independently verify the precise location and surroundings before bidding.