For Sale By Auction | 09:30, 16 October 2025 | Lot 43

213B Church Road, Manor Park, London, E12 6HN

*Guide | £120,000+ (plus fees)

  • Flat
  • 2 Bedrooms
  • Tenure: Leasehold. The property is held on a 125 year lease from 23rd January 2019 (thus approximately 119 years unexpired).

Call the team on 020 7625 9007 for more information

Auction Date

Thu 16/10/2025

Auction Time

09:30

Auction Venue

Live Stream

Viewing Times:

Thu 2 Oct

14:45-15:15

Sat 4 Oct

12:45-13:15

Mon 6 Oct

14:45-15:15

Wed 8 Oct

14:45-15:15

Fri 10 Oct

14:45-15:15

Tue 14 Oct

14:45-15:15

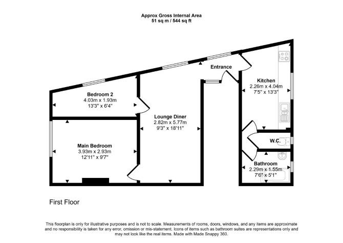
A Vacant First Floor Two Bedroom Flat

The property comprises a first floor two bedroom flat situated within a semi detached building arranged over ground and two upper floors.

Tenure

Leasehold. The property is held on a 125 year lease from 23rd January 2019 (thus approximately 119 years unexpired).

Six Week Completion Available

Location

The property is situated on a residential road close to local shops and amenities. The open spaces of Little Ilford Park are within easy reach. Transport links are provided by East Ham underground station (Circle line) and Barking rail station.

Accommodation

First Floor Reception Room Kitchen Two Bedrooms Bathroom Separate WC

Exterior

The property benefits from a shared garden.

Energy Efficiency Rating (EPC)

Current Rating D

Services

Interested parties are requested to make their own enquiries to the relevant authorities as to the availability of services.

Important Notice to Prospective Buyers:

We draw your attention to the Special Conditions of Sale within the Legal Pack, referring to other charges in addition to the purchase price which may become payable. Such costs may include Search Fees, reimbursement of Sellers costs and Legal Fees, and Transfer Fees amongst others.

Additional Fees

Administration Charge - Purchasers will be required to pay an administration fee of £1,500 inc VAT

Disbursements - Please see the legal pack for any disbursements listed that may become payable by the purchaser on completion.

View Larger Map

Disclaimer: The map preview provided above is for general guidance only and may not accurately reflect the exact location or surrounding buildings. Prospective buyers and interested parties are strongly advised to independently verify the precise location and surroundings before bidding.