For Sale By Auction | 10:00, 17 October 2025 | Lot 219

Land Adjacent to 1 The Link, Houghton Regis, Dunstable, Bedfordshire, LU5 5HQ

*Guide | £10,000 - £20,000 (plus fees)

  • Land
  • Tenure: Freehold

Call the team on 020 7625 9007 for more information

Auction Date

Fri 17/10/2025

Auction Time

10:00

Auction Venue

Live Stream

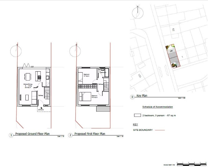
A Plot of Land Measuring Approximately 101 sq m (1,087 sq ft)

A rectangular shaped parcel of land measuring approximately 100 sq m (1,087 sq ft). Plans have been drawn up for the erection of a two bedroom house. No planning application has been submitted for this scheme. Drawings of the proposed plans are available for inspection. Auction House London make no representations or warranties with regard to this scheme and/or the validity of the aforementioned plans. Buyers must rely on their own enquiries with regard to any development potential, permissions required and any previous planning history in respect of this site.

Tenure

Freehold

Location

The land is situated on a residential road close to local shops and amenities. The open spaces of Houghton Hall Park are within easy reach. Transport links are provided by Leagrave rail station.

The site area depicted within the plan in the auction particulars is for indicative purposes only. Additionally, any measurements stated may not be exact. Buyers should rely on their own enquiries with regard to precise measurements, any consents or rights over the land and any possible development potential or alternative uses for this site.

Services

Interested parties are requested to make their own enquiries to the relevant authorities as to the availability of services.

Important Notice to Prospective Buyers:

We draw your attention to the Special Conditions of Sale within the Legal Pack, referring to other charges in addition to the purchase price which may become payable. Such costs may include Search Fees, reimbursement of Sellers costs and Legal Fees, and Transfer Fees amongst others.

Additional Fees

Administration Charge - Purchasers will be required to pay an administration fee of £1,500 inc VAT

Disbursements - Please see the legal pack for any disbursements listed that may become payable by the purchaser on completion.

View Larger Map

Disclaimer: The map preview provided above is for general guidance only and may not accurately reflect the exact location or surrounding buildings. Prospective buyers and interested parties are strongly advised to independently verify the precise location and surroundings before bidding.