For Sale By Auction | 10:00, 17 October 2025 | Lot 211

8 Templar Street, Dover, Kent, CT17 0BW

*Guide | £345,000+ (plus fees)

  • Terraced House
  • 7 Bedrooms
  • Tenure: Freehold

Call the team on 020 7625 9007 for more information

Auction Date

Fri 17/10/2025

Auction Time

10:00

Auction Venue

Live Stream

Viewing Times:

Sat 4 Oct

11:00-11:30

Sat 11 Oct

11:00-11:30

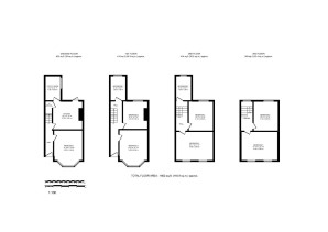
A Seven Bedroom Mid Terrace HMO Part Let Producing £39,600 Per Annum

The property comprises a seven bedroom mid terrace HMO arranged over lower ground, raised ground and two upper floors.

Tenure

Freehold

Location

The property is situated on a residential road close to local shops and amenities. The open spaces of Connaught Park are within easy reach. Transport links are provided by Dover Priory rail station.

Accommodation

Lower Ground Floor Kitchen Bedroom Utility Room WC Raised Ground Floor Two Bedrooms Bathroom First Floor Two Bedrooms Bathroom Second Floor Two Bedrooms

Tenancy

The property is currently subject to six individual tenancies at a rent of £39,600 per annum.

The seller has advised the property is licensed for 9 occupiers/tenants over 7 bedrooms.

Energy Efficiency Rating (EPC)

Current Rating C

Services

Interested parties are requested to make their own enquiries to the relevant authorities as to the availability of services.

Important Notice to Prospective Buyers:

We draw your attention to the Special Conditions of Sale within the Legal Pack, referring to other charges in addition to the purchase price which may become payable. Such costs may include Search Fees, reimbursement of Sellers costs and Legal Fees, and Transfer Fees amongst others.

Additional Fees

Administration Charge - Purchasers will be required to pay an administration fee of £1,500 inc VAT

Disbursements - Please see the legal pack for any disbursements listed that may become payable by the purchaser on completion.

View Larger Map

Disclaimer: The map preview provided above is for general guidance only and may not accurately reflect the exact location or surrounding buildings. Prospective buyers and interested parties are strongly advised to independently verify the precise location and surroundings before bidding.