For Sale By Auction | 09:30, 16 October 2025 | Lot 37

1-7 Kendrick House, Kendrick Lane, Stroud, Gloucestershire, GL5 1AA

*Guide | £525,000+ (plus fees)

  • Mixed Use
  • 7 Bedrooms

Call the team on 020 7625 9007 for more information

Auction Date

Thu 16/10/2025

Auction Time

09:30

Auction Venue

Live Stream

Viewing Times:

Mon 6 Oct

14:30-15:00

Sat 11 Oct

12:00-12:30

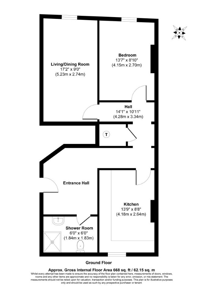
A Freehold Substantial Mixed Use Building Arranged to Provide Five Commercial Units (All Sold Off on Long Leases) and 7 x One Bedroom Flats Part Let Producing £29,040 Per Annum. Previously Let for £65,000. Potential for the Flats to be Sold Off Separately.

Location

The property is situated on a mixed use road close to local shops and amenities. The open spaces of Capel's Mill are within easy reach. Transport links are provided by Stroud rail station.

Services

Interested parties are requested to make their own enquiries to the relevant authorities as to the availability of services.

Important Notice to Prospective Buyers:

We draw your attention to the Special Conditions of Sale within the Legal Pack, referring to other charges in addition to the purchase price which may become payable. Such costs may include Search Fees, reimbursement of Sellers costs and Legal Fees, and Transfer Fees amongst others.

Additional Fees

Administration Charge - Purchasers will be required to pay an administration fee of £1,500 inc VAT

Disbursements - Please see the legal pack for any disbursements listed that may become payable by the purchaser on completion.

View Larger Map

Disclaimer: The map preview provided above is for general guidance only and may not accurately reflect the exact location or surrounding buildings. Prospective buyers and interested parties are strongly advised to independently verify the precise location and surroundings before bidding.