For Sale By Auction | 09:30, 16 October 2025 | Lot 95A

15 Thornview Road, Houghton Regis, Dunstable, Bedfordshire, LU5 5HS

*Guide | £200,000+ (plus fees)

  • Terraced House
  • 3 Bedrooms
  • Tenure: Freehold

Call the team on 020 7625 9007 for more information

Auction Date

Thu 16/10/2025

Auction Time

09:30

Auction Venue

Live Stream

Viewing Times:

Fri 3 Oct

15:30-16:00

Tue 7 Oct

15:30-16:00

Thu 9 Oct

15:30-16:00

A Vacant Three Bedroom Mid Terrace House

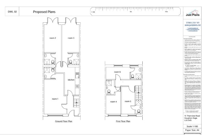
The property comprises a three bedroom mid terrace house arranged over ground and first floors. Plans have been drawn up for the property to be converted into an HMO. No planning application has been submitted for this scheme. Drawings of the proposed plans are available for inspection upon request. Auction House London make no representations or warranties with regard to this scheme and/or the validity of the aforementioned plans. Buyers must rely on their own enquiries with regard to any development potential, permissions required and any previous planning history in respect of this site.

Tenure

Freehold

Location

The property is situated on a residential road close to local shops and amenities. The open spaces of Houghton Hall Park are within easy reach. Transport links are provided by Leagrave rail station.

Accommodation

Ground Floor Reception Rooms Kitchen First Floor Three Bedrooms Bathroom

Exterior

The property benefits from a rear garden.

Energy Efficiency Rating (EPC)

Current Rating D

Services

Interested parties are requested to make their own enquiries to the relevant authorities as to the availability of services.

Important Notice to Prospective Buyers:

We draw your attention to the Special Conditions of Sale within the Legal Pack, referring to other charges in addition to the purchase price which may become payable. Such costs may include Search Fees, reimbursement of Sellers costs and Legal Fees, and Transfer Fees amongst others.

Additional Fees

Administration Charge - Purchasers will be required to pay an administration fee of £1,500 inc VAT

Disbursements - Please see the legal pack for any disbursements listed that may become payable by the purchaser on completion.

View Larger Map

Disclaimer: The map preview provided above is for general guidance only and may not accurately reflect the exact location or surrounding buildings. Prospective buyers and interested parties are strongly advised to independently verify the precise location and surroundings before bidding.