For Sale By Auction | 10:00, 13 November 2025 | Lot 201

1 High Street, West Cornforth, Ferryhill, County Durham, DL17 9HN

*Guide | £15,000+ (plus fees)

  • Commercial Property
  • Tenure: Freehold

Call the team on 020 7625 9007 for more information

Auction Date

Thu 13/11/2025

Auction Time

10:00

Auction Venue

Live Stream

Viewing Times:

Tue 4 Nov

12:00-12:30

Thu 6 Nov

12:00-12:30

Sat 8 Nov

10:00-10:30

Tue 11 Nov

12:00-12:30

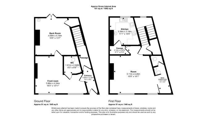
A Vacant Mid Terrace Building Arranged to Provide Three Office Rooms. Potential to Convert to Residential Use (Subject to Obtaining all Relevant Consents)

The property comprises a mid terrace building arranged to provide three office rooms over ground and first floors. The property requires a program of refurbishment and repairs.

Tenure

Freehold

Location

The property is situated on a mixed use road close to local shops and amenities. The open spaces of West Cornforth Woods are within easy reach. Transport links are provided by the A1 to the East.

Accommodation

Ground Floor Two Office Rooms WC First Floor Office Room Kitchen WC

Exterior

The property benefits from a rear yard.

Energy Efficiency Rating (EPC)

Current Rating D

Services

Interested parties are requested to make their own enquiries to the relevant authorities as to the availability of services.

Important Notice to Prospective Buyers:

We draw your attention to the Special Conditions of Sale within the Legal Pack, referring to other charges in addition to the purchase price which may become payable. Such costs may include Search Fees, reimbursement of Sellers costs and Legal Fees, and Transfer Fees amongst others.

Additional Fees

Administration Charge - Purchasers will be required to pay an administration fee of £1,500 inc VAT

Disbursements - Please see the legal pack for any disbursements listed that may become payable by the purchaser on completion.

View Larger Map

Disclaimer: The map preview provided above is for general guidance only and may not accurately reflect the exact location or surrounding buildings. Prospective buyers and interested parties are strongly advised to independently verify the precise location and surroundings before bidding.