For Sale By Auction | 09:30, 12 November 2025 | Lot 12

7 Queens Road, Eastbourne, East Sussex, BN23 6JT

*Guide | £195,000+ (plus fees)

  • End of Terrace House
  • 3 Bedrooms
  • Tenure: Freehold

Call the team on 020 7625 9007 for more information

Auction Date

Wed 12/11/2025

Auction Time

09:30

Auction Venue

Live Stream

Viewing Times:

Wed 29 Oct

12:00-12:30

Sat 1 Nov

11:00-11:30

Tue 4 Nov

13:00-13:30

Thu 6 Nov

13:00-13:30

Sat 8 Nov

11:00-11:30

A Vacant Three Bedroom End of Terrace House

The property comprises a three bedroom end of terrace house arranged over ground and two upper floors. The property benefits from a rear extension and loft conversion. The property requires a program of refurbishment.

Tenure

Freehold

5 Week Completion Available or Earlier If Agreed

Location

The property is situated on a residential road within the popular St Anthony's area of Eastbourne close to local shops and amenities. The open spaces of Sovereign Park and the seafront are within easy reach. Transport links are provided by Eastbourne rail station.

Accommodation

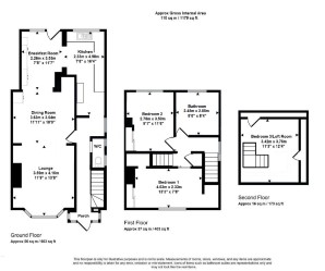
Ground Floor Through Reception Room Breakfast Room Kitchen WC First Floor Two Bedrooms Bathroom Second Floor Bedroom GIA Approximately: 1,185 sq ft (110 sq m)

Exterior

The property benefits from a rear garden with a patio area and off-street parking for two vehicles.

Energy Efficiency Rating (EPC)

Current Rating D

Services

Interested parties are requested to make their own enquiries to the relevant authorities as to the availability of services.

Important Notice to Prospective Buyers:

We draw your attention to the Special Conditions of Sale within the Legal Pack, referring to other charges in addition to the purchase price which may become payable. Such costs may include Search Fees, reimbursement of Sellers costs and Legal Fees, and Transfer Fees amongst others.

Additional Fees

Administration Charge - Purchasers will be required to pay an administration fee of £1,500 inc VAT

Disbursements - Please see the legal pack for any disbursements listed that may become payable by the purchaser on completion.

View Larger Map

Disclaimer: The map preview provided above is for general guidance only and may not accurately reflect the exact location or surrounding buildings. Prospective buyers and interested parties are strongly advised to independently verify the precise location and surroundings before bidding.