For Sale By Auction | 09:30, 10 December 2025 | Lot 5

32 Deptford High Street, Deptford, London, SE8 4AF

Sold £401,000

  • Mixed Use
  • Tenure: Freehold

Call the team on 020 7625 9007 for more information

Auction Date

Wed 10/12/2025

Auction Time

09:30

Auction Venue

Live Stream

Viewing Times:

Tue 2 Dec

15:00-15:30

Thu 4 Dec

15:00-15:30

Mon 8 Dec

15:00-15:30

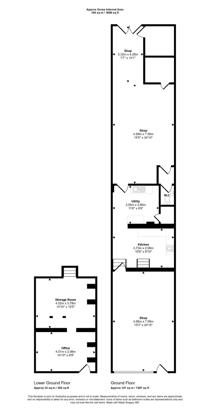
A Mid Terrace Building Arranged to Provide a Lower Ground and Ground Floor Commercial Unit with First Floor Ancillary Space and a Garage to the Rear Fully Let Producing £14,640 Per Annum. Offered With Planning Permission to Convert the First Floor into a Flat, and the Erection of a Three Storey House to the Rear. Additional Plans have been Drawn Up for the Erection of a Duplex Flat on the First and Second Floors and Two Flats at the Rear.

The property comprises a mid terrace building arranged to provide a lower ground and ground floor commercial unit with first floor ancillary and a garage to the rear.

Tenure

Freehold

8 Week Completion Available or Earlier if Required

Location

The property is situated on a mixed use road close to local shops and amenities. The open spaces of Margaret McMillan Park are within easy reach. Transport links are provided by New Cross overground station and Deptford rail station.

Accommodation

Lower Ground and Ground Floors Commercial Unit First Floor Ancillary Space

Planning

Lewisham Borough Council granted the following planning permission (ref: DC/25/139285) on 24th March 2025 : 'The conversion of the first floor and loft space of 32 Deptford High Street, SE8, including the insertion of two windows into the first floor front elevation and the construction of a window dormer at the rear roof slop, and the construction of a three storey building facing onto Reginald Square, to provide 2.no self-contained residential units, together with the provision of private external amenity space, refuse and bicycle storage, air source heat pumps, and all associated works and subject to a Unilateral Undertaking pursuant to S106 of the Town and Country Planning Act 1990 (as amended) dated 27 October 2025'.

Tenancy

The property is subject to a lease expiring 3rd August 2026 at a rent of £14,460 per annum. The seller has served a section 25 notice on the tenant to terminate the lease on the expiry date, and the tenant has confirmed receipt of the notice. The tenant has indicated they wish to negotiate a new lease on a smaller area of the premises, thereby allowing the incoming buyer to develop and retain the current tenant.

Energy Efficiency Rating (EPC)

Current Rating B

Services

Interested parties are requested to make their own enquiries to the relevant authorities as to the availability of services.

Important Notice to Prospective Buyers:

We draw your attention to the Special Conditions of Sale within the Legal Pack, referring to other charges in addition to the purchase price which may become payable. Such costs may include Search Fees, reimbursement of Sellers costs and Legal Fees, and Transfer Fees amongst others.

Additional Fees

Administration Charge - Purchasers will be required to pay an administration fee of £1,800 inc VAT

Disbursements - Please see the legal pack for any disbursements listed that may become payable by the purchaser on completion.

View Larger Map

Disclaimer: The map preview provided above is for general guidance only and may not accurately reflect the exact location or surrounding buildings. Prospective buyers and interested parties are strongly advised to independently verify the precise location and surroundings before bidding.