For Sale By Auction | 09:30, 10 December 2025 | Lot 16B

23A Belmont Road, Hemel Hempstead, Hertfordshire, HP3 9NZ

Sold £450,000

  • Detached House
  • 3 Bedrooms
  • Tenure: Freehold

Call the team on 020 7625 9007 for more information

Auction Date

Wed 10/12/2025

Auction Time

09:30

Auction Venue

Live Stream

Viewing Times:

Tue 2 Dec

16:00-16:30

Thu 4 Dec

11:15-11:45

Sat 6 Dec

11:15-11:45

Tue 9 Dec

11:15-11:45

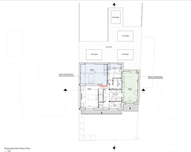
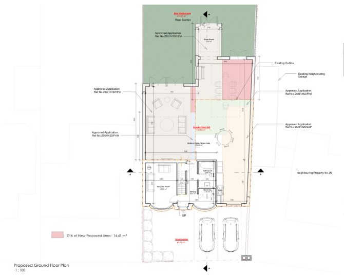
A Vacant Two Bedroom Detached House Offered With Planning Permission for Conversion of Existing Garage with Part Single Two-Storey Side and Rear Extension to Create a 2,658 sq ft (247 sq m) Family Home.

The property comprises a two bedroom detached house arranged over ground and first floors. The property requires a program of refurbishment.

Tenure

Freehold

8 Week Completion Available or Earlier if Required

Location

The property is situated on a residential road close to local shops and amenities. The open spaces of Lime Walk are within easy reach. Transport links are provided by Apsley rail station.

Exterior

The property benefits from both front and rear gardens, a garage and off-street parking.

Planning

Dacorum Borough Council granted the following planning permissions: Garage conversion (25/01463/FHA) Single-storey rear extensions (25/01419/HPA & 25/01461/HPA) Side and rear extensions (25/01420/LDP) Two-storey side and rear extensions (25/01422/FHA & 25/01462/FHA) Comprehensive extension and garage conversion (25/02461/FHA)

Proposed Accommodation

Ground Floor Three Reception Rooms (One with Open-Plan Kitchen) Bathroom Conservatory First Floor Four Bedrooms (One with En-Suite) Bathroom Laundry Room

Energy Efficiency Rating (EPC)

Current Rating F

Services

Interested parties are requested to make their own enquiries to the relevant authorities as to the availability of services.

Important Notice to Prospective Buyers:

We draw your attention to the Special Conditions of Sale within the Legal Pack, referring to other charges in addition to the purchase price which may become payable. Such costs may include Search Fees, reimbursement of Sellers costs and Legal Fees, and Transfer Fees amongst others.

Additional Fees

Administration Charge - Purchasers will be required to pay an administration fee of £1,800 inc VAT

Disbursements - Please see the legal pack for any disbursements listed that may become payable by the purchaser on completion.

View Larger Map

Disclaimer: The map preview provided above is for general guidance only and may not accurately reflect the exact location or surrounding buildings. Prospective buyers and interested parties are strongly advised to independently verify the precise location and surroundings before bidding.