For Sale By Auction | 09:30, 11 February 2026 | Lot 149

The Winston, 23 Womersley Road, Knottingley, West Yorkshire, WF11 0DB

*Guide | £300,000+ (plus fees)

  • Pub
  • 1 Bedroom
  • Tenure: Freehold

Call the team on 020 7625 9007 for more information

Auction Date

Wed 11/02/2026

Auction Time

09:30

Auction Venue

Live Stream

Viewing Times:

Fri 30 Jan

12:00-12:30

Tue 3 Feb

12:00-12:30

Thu 5 Feb

12:00-12:30

Sat 7 Feb

11:00-11:30

Tue 10 Feb

12:00-12:30

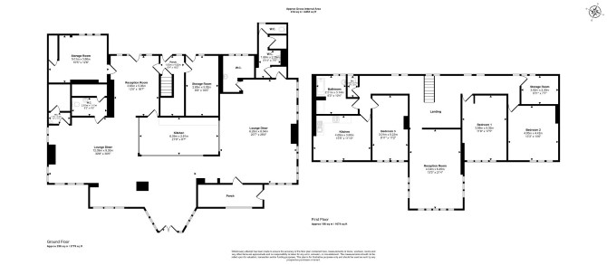
A Vacant Detached Building Arranged to Provide a Lower Ground and Ground Floor Former Public House and First Floor Residential Accommodation Situated on a Plot of Land Measuring Approximately 0.92 acres. Potential for Development (Subject to Obtaining all Relevant Consents)

The property comprises a detached building arranged to provide a lower ground and ground floor former public house and first floor residential accommodation.

Tenure

Freehold

Location

The property is situated on a residential road close to local shops and amenities. There are numerous open spaces within easy reach. Transport links are provided by Knottingley rail station.

Accommodation

Lower Ground Floor G.I.A Approximately 85 sq m (925 sq ft) Ground Floor G.I.A Approximately 286 sq m (2,890 sq ft) First Floor G.I.A Approximately 159 sq m (1,714 sq ft)

Exterior

The property benefits from a large rear garden and off street parking.

Services

Interested parties are requested to make their own enquiries to the relevant authorities as to the availability of services.

Important Notice to Prospective Buyers:

We draw your attention to the Special Conditions of Sale within the Legal Pack, referring to other charges in addition to the purchase price which may become payable. Such costs may include Search Fees, reimbursement of Sellers costs and Legal Fees, and Transfer Fees amongst others.

Additional Fees

Administration Charge - Purchasers will be required to pay an administration fee of £1,800 inc VAT

Disbursements - Please see the legal pack for any disbursements listed that may become payable by the purchaser on completion.

View Larger Map

Disclaimer: The map preview provided above is for general guidance only and may not accurately reflect the exact location or surrounding buildings. Prospective buyers and interested parties are strongly advised to independently verify the precise location and surroundings before bidding.