For Sale By Auction | 09:30, 11 February 2026 | Lot 55

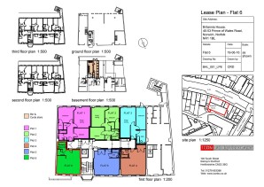
Britannia House, 45-53 Prince of Wales Road, Norwich, Norfolk, NR1 1BL

*Guide | £2,000,000+ (plus fees)

  • Block of Apartments
  • 22 Bedrooms
  • Tenure: Freehold

Call the team on 020 7625 9007 for more information

Auction Date

Wed 11/02/2026

Auction Time

09:30

Auction Venue

Live Stream

A Substantial Mixed Use Building Arranged to Provide Two Ground Floor Split Level Retail Units (Both Sold Off) and Twenty Two Flats (One Sold Off) Fully Let Producing a Combined Income of £198,250 Per Annum

The property comprises a substantial mixed use building arranged to provide two ground floor split level retail units and twenty two flats (9 x studio & 13 x one bedroom) arranged over first, second and third floors.

Tenure

Freehold

Location

The property is situated on a mixed use road close to local shops and amenities. The open spaces of Lion Wood are within easy reach. Transport links are provided by Norwich rail station.

Accommodation

Lower Ground and Ground Floors 1 x Retail Unit (Sold Off) Lower Ground, Ground and First Floors 1 x Retail Unit (Sold Off) First Floor 3 x Studio Flats 3 x One Bedroom Flats Second Floor 3 x Studio Flats 5 x One Bedroom Flats Third Floor 3 x Studio Flats 5 x One Bedroom Flats

Tenancy

21 out of 22 flats are subject to individual tenancies at a combined rent of £198,000pa. Flat 10 is sold off on a lease expiring 13/10/2141 with a ground rent of £250pa.. Please refer to the legal pack for the full tenancy schedule.

Energy Efficiency Rating (EPC)

Current Rating Multiple

Services

Interested parties are requested to make their own enquiries to the relevant authorities as to the availability of services.

Important Notice to Prospective Buyers:

We draw your attention to the Special Conditions of Sale within the Legal Pack, referring to other charges in addition to the purchase price which may become payable. Such costs may include Search Fees, reimbursement of Sellers costs and Legal Fees, and Transfer Fees amongst others.

Additional Fees

Administration Charge - Purchasers will be required to pay an administration fee of £1,800 inc VAT

Disbursements - Please see the legal pack for any disbursements listed that may become payable by the purchaser on completion.

View Larger Map

Disclaimer: The map preview provided above is for general guidance only and may not accurately reflect the exact location or surrounding buildings. Prospective buyers and interested parties are strongly advised to independently verify the precise location and surroundings before bidding.