For Sale By Auction | 09:30, 11 February 2026 | Lot 87

52 Mansfield Road, Skegby, Sutton-in-Ashfield, Nottinghamshire, NG17 3EQ

*Guide | £60,000+ (plus fees)

  • Mixed Use
  • 2 Bedrooms
  • Tenure: Freehold

Call the team on 020 7625 9007 for more information

Auction Date

Wed 11/02/2026

Auction Time

09:30

Auction Venue

Live Stream

Viewing Times:

Wed 4 Feb

12:00-12:30

Sat 7 Feb

13:00-13:30

Tue 10 Feb

12:00-12:30

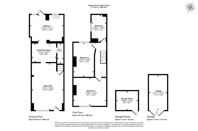
A Vacant Mid Terrace Building Arranged to Provide a Ground Floor Commercial Unit (Formerly a Take Away) with a Two Bedroom Living Accommodation to the First Floor.

The property comprises a mid terrace building arranged to provide a ground floor commercial unit formerly used as a Take Away restaurant with living quarters on the first floor.

Tenure

Freehold

Location

The property is situated on a mixed use road close to local shops and amenities. The open spaces of Healdswood Park are within easy reach. Transport links are provided by Sutton Parkway rail station.

Accommodation

Ground Floor Shop Area Food Prep Area Kitchen First Floor Two Bedrooms Bathroom

Exterior

The property benefits from a rear garden an outbuilding and a garage, access is via the service road to the rear of the property.

Energy Efficiency Rating (EPC)

Current Rating B

Services

Interested parties are requested to make their own enquiries to the relevant authorities as to the availability of services.

Important Notice to Prospective Buyers:

We draw your attention to the Special Conditions of Sale within the Legal Pack, referring to other charges in addition to the purchase price which may become payable. Such costs may include Search Fees, reimbursement of Sellers costs and Legal Fees, and Transfer Fees amongst others.

Additional Fees

Administration Charge - Purchasers will be required to pay an administration fee of £1,800 inc VAT

Disbursements - Please see the legal pack for any disbursements listed that may become payable by the purchaser on completion.

View Larger Map

Disclaimer: The map preview provided above is for general guidance only and may not accurately reflect the exact location or surrounding buildings. Prospective buyers and interested parties are strongly advised to independently verify the precise location and surroundings before bidding.