For Sale By Auction | 09:30, 11 February 2026

Duke House, Arkwright Way, Queensway Industrial Estate, Scunthorpe, South Humberside, DN16 1AL

*Guide | £110,000+ (plus fees)

  • Commercial Property
  • Tenure: Leasehold. The property is held on a 125 year lease from February 1990 (thus approximately 90 years unexpired).

Call the team on 020 7625 9007 for more information

Auction Date

Wed 11/02/2026

Auction Time

09:30

Auction Venue

Live Stream

Viewing Times:

Fri 9 Jan

12:00-12:30

A Vacant Two-Storey Detached Office Building

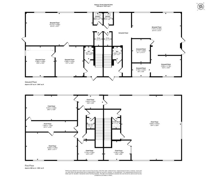
The property comprises a two-storey office building measuring approximately 438 sq m (4,714 sq ft) arranged over ground and first floors. The property is currently divided to provide two fully inter-connected suites but these could be separated to form two separate offices, if required.

Tenure

Leasehold. The property is held on a 125 year lease from February 1990 (thus approximately 90 years unexpired).

Location

The property is situated on the outskirts of Scunthorpe, close to local shops and amenities. The open spaces of Ashby Ville Nature Reserve are within easy reach. Transport links are provided by Scunthorpe rail station.

Accommodation

Suite 17A Ground floor First Floor Total 213.64 sq m (2,300 sq ft) Suite 17B Ground Floor First Floor Total 213.64 sq m (2,300 sq ft) Combined Total 427.28 sq m (4,600 sq ft)

Exterior

The property benefits from off street parking.

The property was previously let for £28,000 per annum.

Energy Efficiency Rating (EPC)

Current Rating D

Services

Interested parties are requested to make their own enquiries to the relevant authorities as to the availability of services.

Important Notice to Prospective Buyers:

We draw your attention to the Special Conditions of Sale within the Legal Pack, referring to other charges in addition to the purchase price which may become payable. Such costs may include Search Fees, reimbursement of Sellers costs and Legal Fees, and Transfer Fees amongst others.

Additional Fees

Administration Charge - Purchasers will be required to pay an administration fee of £1,800 inc VAT

Disbursements - Please see the legal pack for any disbursements listed that may become payable by the purchaser on completion.

View Larger Map

Disclaimer: The map preview provided above is for general guidance only and may not accurately reflect the exact location or surrounding buildings. Prospective buyers and interested parties are strongly advised to independently verify the precise location and surroundings before bidding.