For Sale By Auction | 09:30, 11 February 2026 | Lot 159

Flat 14 Northumberland Court, Northumberland Avenue, Margate, Kent, CT9 3BS

*Guide | £50,000 - £100,000 (plus fees)

  • Flat
  • 2 Bedrooms
  • Tenure: Leasehold. The property is held on a 999 year lease from 25th December 1950 (thus approximately 924 years unexpired).

Call the team on 020 7625 9007 for more information

Auction Date

Wed 11/02/2026

Auction Time

09:30

Auction Venue

Live Stream

Viewing Times:

Thu 29 Jan

10:30-11:00

Thu 5 Feb

09:00-09:30

Sat 7 Feb

09:00-09:30

Tue 10 Feb

10:00-10:30

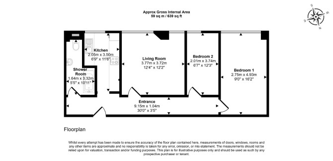
A Vacant First Floor Two Bedroom Flat

The property comprises a first floor two bedroom flat situated within a purpose built block arranged over ground and four upper floors.

Tenure

Leasehold. The property is held on a 999 year lease from 25th December 1950 (thus approximately 924 years unexpired).

Location

The property is situated on a residential road close to local shops and amenities. The open spaces of Palm Bay Beach are within easy reach. Transport links are provided by Margate rail station.

Accommodation

First Floor Reception Room Kitchen Two Bedrooms Bathroom

Energy Efficiency Rating (EPC)

Current Rating E

Services

Interested parties are requested to make their own enquiries to the relevant authorities as to the availability of services.

Important Notice to Prospective Buyers:

We draw your attention to the Special Conditions of Sale within the Legal Pack, referring to other charges in addition to the purchase price which may become payable. Such costs may include Search Fees, reimbursement of Sellers costs and Legal Fees, and Transfer Fees amongst others.

Additional Fees

Administration Charge - Purchasers will be required to pay an administration fee of £1,800 inc VAT

Disbursements - Please see the legal pack for any disbursements listed that may become payable by the purchaser on completion.

View Larger Map

Disclaimer: The map preview provided above is for general guidance only and may not accurately reflect the exact location or surrounding buildings. Prospective buyers and interested parties are strongly advised to independently verify the precise location and surroundings before bidding.