For Sale By Auction | 09:30, 11 February 2026

Former Salvation Army, Somersby Avenue, Mablethorpe, Lincolnshire, LN12 1HH

*Guide | £150,000+ (plus fees)

  • Office
  • Tenure: Freehold

Call the team on 020 7625 9007 for more information

Auction Date

Wed 11/02/2026

Auction Time

09:30

Auction Venue

Live Stream

A Vacant Single Storey Detached Building. Potential for Development (Subject to Obtaining all Relevant Consents)

The property comprises a single storey detached building.

Tenure

Freehold

Location

The property is situated on a mixed use road close to local shops and amenities. The open spaces of Mablethorpe Beach are within easy reach. Transport links are provided by the A16 to the west.

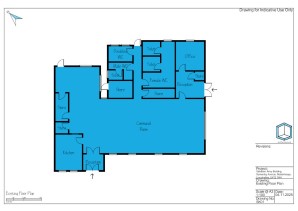
Accommodation

Ground Floor Room Kitchen WCs Storage Area G.I.A. Approximately 2,120 sq ft

Services

Interested parties are requested to make their own enquiries to the relevant authorities as to the availability of services.

Important Notice to Prospective Buyers:

We draw your attention to the Special Conditions of Sale within the Legal Pack, referring to other charges in addition to the purchase price which may become payable. Such costs may include Search Fees, reimbursement of Sellers costs and Legal Fees, and Transfer Fees amongst others.

Additional Fees

Administration Charge - Purchasers will be required to pay an administration fee of £1,800 inc VAT

Disbursements - Please see the legal pack for any disbursements listed that may become payable by the purchaser on completion.

View Larger Map

Disclaimer: The map preview provided above is for general guidance only and may not accurately reflect the exact location or surrounding buildings. Prospective buyers and interested parties are strongly advised to independently verify the precise location and surroundings before bidding.