For Sale By Auction | 09:30, 11 February 2026 | Lot 74A

Ground Floor Flat, 43 Kellino Street, Tooting, London, SW17 8SY

*Guide | £330,000+ (plus fees)

  • Flat
  • 2 Bedrooms
  • Tenure: Leasehold. The property is held on a 131 year lease from 25th December 2009 (thus approximately 115 years unexpired).

Call the team on 020 7625 9007 for more information

Auction Date

Wed 11/02/2026

Auction Time

09:30

Auction Venue

Live Stream

Viewing Times:

Thu 29 Jan

11:30-12:00

Sat 31 Jan

13:00-13:30

Mon 2 Feb

11:30-12:00

Wed 4 Feb

11:30-12:00

Fri 6 Feb

11:30-12:00

Tue 10 Feb

11:30-12:00

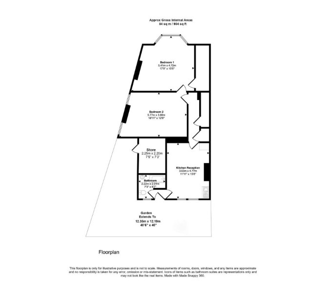
A Vacant Ground Floor Two Bedroom Garden Flat. Potential for Side and Rear Extensions (Subject to Obtaining all Relevant Consents)

The property comprises a large ground floor two bedroom garden flat situated within an end of terrace building arranged over ground and first floors. The property requires a program of refurbishment.

Tenure

Leasehold. The property is held on a 131 year lease from 25th December 2009 (thus approximately 115 years unexpired).

Location

The property is situated in a prime Tooting location on a residential road close to local shops and amenities. The open spaces of Tooting Commons are within easy reach. Transport links are provided by Tooting Broadway underground station (Northern line) which is just a short walk away.

Accommodation

Ground Floor Reception Room with Open-Plan Kitchen Two Bedrooms Bathroom Store Room

Exterior

The property benefits from a large private rear garden.

Energy Efficiency Rating (EPC)

Current Rating D

Services

Interested parties are requested to make their own enquiries to the relevant authorities as to the availability of services.

Important Notice to Prospective Buyers:

We draw your attention to the Special Conditions of Sale within the Legal Pack, referring to other charges in addition to the purchase price which may become payable. Such costs may include Search Fees, reimbursement of Sellers costs and Legal Fees, and Transfer Fees amongst others.

Additional Fees

Administration Charge - Purchasers will be required to pay an administration fee of £1,800 inc VAT

Disbursements - Please see the legal pack for any disbursements listed that may become payable by the purchaser on completion.

View Larger Map

Disclaimer: The map preview provided above is for general guidance only and may not accurately reflect the exact location or surrounding buildings. Prospective buyers and interested parties are strongly advised to independently verify the precise location and surroundings before bidding.