For Sale By Auction | 09:30, 11 February 2026 | Lot 44A

Flat F, 40 Powis Square, Kensington and Chelsea, London, W11 2AY

*Guide | £285,000+ (plus fees)

  • Flat
  • 1 Bedroom
  • Tenure: Leasehold. The property will be held on a new 125 year lease.

Call the team on 020 7625 9007 for more information

Auction Date

Wed 11/02/2026

Auction Time

09:30

Auction Venue

Live Stream

Viewing Times:

Wed 4 Feb

11:00-11:30

Thu 5 Feb

11:00-11:30

Sat 7 Feb

11:00-11:30

Mon 9 Feb

11:00-11:30

Tue 10 Feb

11:00-11:30

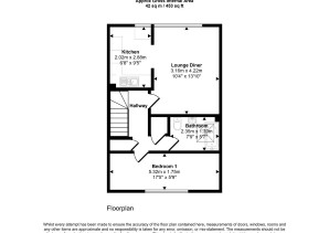
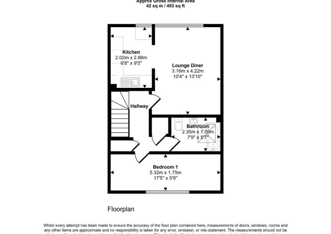
A Vacant Fourth Floor One Bedroom Flat

The property comprises a fourth floor one bedroom flat situated within a mid terrace building arranged over lower ground, ground and four upper floors. The property requires a program of refurbishment.

Tenure

Leasehold. The property will be held on a new 125 year lease.

Location

The property is situated on a residential road close to local shops and amenities. The open spaces of Kensington Gardens are within easy reach. Transport links are provided by Westbourne Park underground station (Circle line) and Shepherds Bush rail station.

Accommodation

Fourth Floor Reception Room Kitchen Bedroom Bathroom

New Partnership

False

Energy Efficiency Rating (EPC)

Current Rating D

Services

Interested parties are requested to make their own enquiries to the relevant authorities as to the availability of services.

Important Notice to Prospective Buyers:

We draw your attention to the Special Conditions of Sale within the Legal Pack, referring to other charges in addition to the purchase price which may become payable. Such costs may include Search Fees, reimbursement of Sellers costs and Legal Fees, and Transfer Fees amongst others.

Additional Fees

Administration Charge - Purchasers will be required to pay an administration fee of £1,800 inc VAT

Disbursements - Please see the legal pack for any disbursements listed that may become payable by the purchaser on completion.

View Larger Map

Disclaimer: The map preview provided above is for general guidance only and may not accurately reflect the exact location or surrounding buildings. Prospective buyers and interested parties are strongly advised to independently verify the precise location and surroundings before bidding.