For Sale By Auction | 09:30, 11 February 2026 | Lot 61A

Land to the Rear of 93 Worsley Road, Frimley, Camberley, Surrey, GU16 9BB

*Guide | £100,000+ (plus fees)

  • Land
  • Tenure: Freehold

Call the team on 020 7625 9007 for more information

Auction Date

Wed 11/02/2026

Auction Time

09:30

Auction Venue

Live Stream

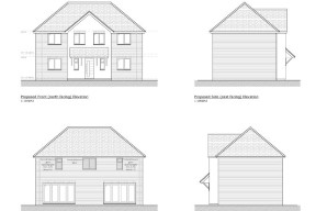
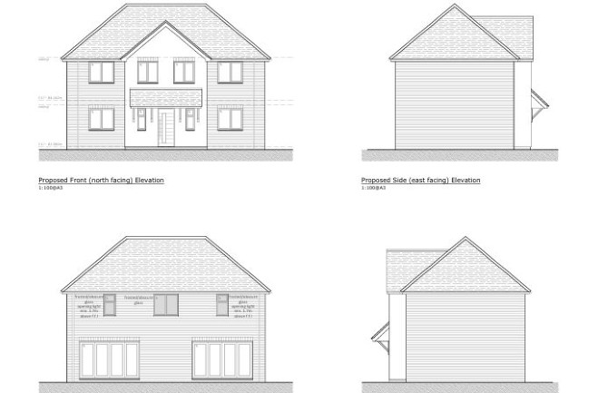
A Plot of Land Measuring Approximately 272 sq m (2,925 sq ft). Offered with Planning Permission for the Erection of a Three Bedroom Detached House

The lot comprises a plot of land measuring approximately 272 sq m (2,925 sq ft).

Tenure

Freehold

Location

The land is situated on a residential road close to local shops and amenities. The open spaces of Frimley Green Recreation Ground are within easy reach. Transport links are provided by Frimley rail station.

Planning

Surrey Heath Borough Council granted the following planning permission on 12th November 2025: 'Erection of detached dwelling with new vehicular access from Dunbar Road,landscaping and associated works.

The site area depicted within the plan in the auction particulars is for indicative purposes only. Additionally, any measurements stated may not be exact. Some or all of the plot may comprise adopted highway land and if the site has trees, there may be Tree Preservation Orders in place. Buyers should rely on their own enquiries with regard to precise measurements, any consents or rights over the land and any possible development potential or alternative uses for this site.

Services

Interested parties are requested to make their own enquiries to the relevant authorities as to the availability of services.

Important Notice to Prospective Buyers:

We draw your attention to the Special Conditions of Sale within the Legal Pack, referring to other charges in addition to the purchase price which may become payable. Such costs may include Search Fees, reimbursement of Sellers costs and Legal Fees, and Transfer Fees amongst others.

Additional Fees

Administration Charge - Purchasers will be required to pay an administration fee of £1,800 inc VAT

Disbursements - Please see the legal pack for any disbursements listed that may become payable by the purchaser on completion.

View Larger Map

Disclaimer: The map preview provided above is for general guidance only and may not accurately reflect the exact location or surrounding buildings. Prospective buyers and interested parties are strongly advised to independently verify the precise location and surroundings before bidding.