For Sale By Auction | 09:30, 18 March 2026 | Lot 40A

Flat A, 93 Mount View Road, Hornsey, London, N4 4JA

*Guide | £500,000+ (plus fees)

  • Flat
  • 3 Bedrooms
  • Tenure: Leasehold. The property is held on a 999 year lease from 2nd August 2007 (thus approximately 981 years unexpired).

Call the team on 020 7625 9007 for more information

Auction Date

Wed 18/03/2026

Auction Time

09:30

Auction Venue

Live Stream

Viewing Times:

Wed 4 Mar

10:00-10:30

Fri 6 Mar

10:00-10:30

Tue 10 Mar

10:00-10:30

Thu 12 Mar

10:00-10:30

Sat 14 Mar

11:00-11:30

Mon 16 Mar

10:00-10:30

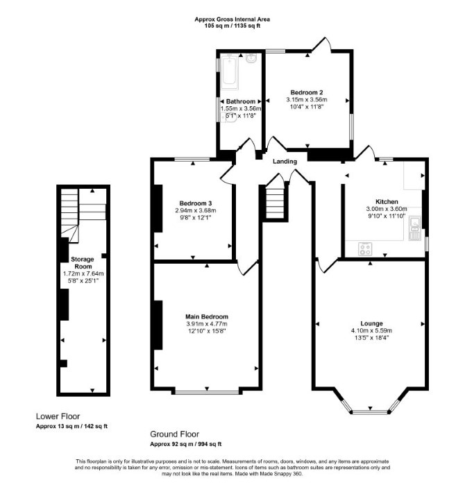
A Vacant Ground Floor Three Bedroom Flat

The property comprises a ground floor three bedroom flat situated within an end of terrace building arranged over ground and two upper floors. The property benefits from access to a cellar room. The property requires a program of refurbishment.

Tenure

Leasehold. The property is held on a 999 year lease from 2nd August 2007 (thus approximately 981 years unexpired).

Location

The property is situated on a residential road close to local shops and amenities. The open spaces of Finsbury Park are within easy reach. Transport links are provided by Crouch Hill overground station and Harringay rail station.

Accommodation

Ground Floor Two Reception Rooms Kitchen Conservatory Three Bedrooms Bathroom

Exterior

The property benefits from a shared rear garden.

Energy Efficiency Rating (EPC)

Current Rating D

Services

Interested parties are requested to make their own enquiries to the relevant authorities as to the availability of services.

Important Notice to Prospective Buyers:

We draw your attention to the Special Conditions of Sale within the Legal Pack, referring to other charges in addition to the purchase price which may become payable. Such costs may include Search Fees, reimbursement of Sellers costs and Legal Fees, and Transfer Fees amongst others.

Additional Fees

Administration Charge - Purchasers will be required to pay an administration fee of £1,800 inc VAT

Disbursements - Please see the legal pack for any disbursements listed that may become payable by the purchaser on completion.

View Larger Map

Disclaimer: The map preview provided above is for general guidance only and may not accurately reflect the exact location or surrounding buildings. Prospective buyers and interested parties are strongly advised to independently verify the precise location and surroundings before bidding.