For Sale By Auction | 09:30, 18 March 2026 | Lot 88

Flat 701 Signal Building, Station Approach, Hayes, Middlesex, UB3 4FG

*Guide | £150,000+ (plus fees)

  • Flat
  • 1 Bedroom
  • Tenure: Leasehold. The property is held on a 124 year lease from 9th November 2007 (thus approximately 106 years unexpired).

Call the team on 020 7625 9007 for more information

Auction Date

Wed 18/03/2026

Auction Time

09:30

Auction Venue

Live Stream

Viewing Times:

Thu 12 Mar

12:30-13:00

Mon 16 Mar

12:30-13:00

Tue 17 Mar

12:30-13:00

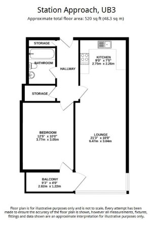
A Seventh Floor One Bedroom Flat Subject to an Assured Shorthold Tenancy Producing £23,400 Per Annum (Reflecting a Gross Initial Yield of 15.6%)

The property comprises a seventh floor one bedroom flat situated within a purpose built building arranged over ground and seven upper floors.

Tenure

Leasehold. The property is held on a 124 year lease from 9th November 2007 (thus approximately 106 years unexpired).

Location

The property is situated on a residential road close to local shops and amenities. The open spaces of Minet Country Park are within easy reach. Transport links are provided by Hayes and Harlington underground station (Elizabeth line) and rail station.

Accommodation

Seventh Floor Reception Room Kitchen Bedroom Bathroom

Exterior

The property benefits from a private balcony.

Tenancy

The property is subject to an Assured Shorthold Tenancy at a rent of £1,950 per calendar month.

Further Information

When purchasing a flat that has a short lease, it is important to understand that in addition to the purchase price, if you wish to extend the lease to 90+ years, you will need to pay a premium to the freeholder. This is done by way of serving a Section 42 notice to the freeholder requesting a lease extension with a suggested price for the extension. The freeholder has the right to refuse the offer and submit a counter notice with their suggested price. If you do not fully understand this process, please ask the auctioneers or a solicitor.

Energy Efficiency Rating (EPC)

Current Rating B

Services

Interested parties are requested to make their own enquiries to the relevant authorities as to the availability of services.

Important Notice to Prospective Buyers:

We draw your attention to the Special Conditions of Sale within the Legal Pack, referring to other charges in addition to the purchase price which may become payable. Such costs may include Search Fees, reimbursement of Sellers costs and Legal Fees, and Transfer Fees amongst others.

Additional Fees

Administration Charge - Purchasers will be required to pay an administration fee of £1,800 inc VAT

Disbursements - Please see the legal pack for any disbursements listed that may become payable by the purchaser on completion.

View Larger Map

Disclaimer: The map preview provided above is for general guidance only and may not accurately reflect the exact location or surrounding buildings. Prospective buyers and interested parties are strongly advised to independently verify the precise location and surroundings before bidding.