For Sale By Auction | 14:00, 04 March 2026 | Lot 17

Flat 16 Cameron House, Highland Road, Bromley, Kent, BR1 4AG

*Guide | £85,000+ (plus fees)

  • Flat
  • 1 Bedroom
  • Tenure: Leasehold. The property is held on a 99 year lease from 25th March 1960 (thus approximately 33 years unexpired).

Call the team on 020 7625 9007 for more information

Auction Date

Wed 04/03/2026

Auction Time

14:00

Auction Venue

Unknown

Viewing Times:

Wed 18 Feb

13:45-14:15

Fri 20 Feb

13:45-14:15

Tue 24 Feb

13:45-14:15

Thu 26 Feb

13:45-14:15

Sat 28 Feb

12:00-12:30

Mon 2 Mar

13:45-14:15

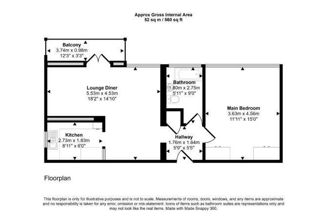
A Vacant First Floor One Bedroom Flat

The property comprises a first floor one bedroom flat situated within a purpose built block arranged over ground and four upper floors.

Tenure

Leasehold. The property is held on a 99 year lease from 25th March 1960 (thus approximately 33 years unexpired).

Location

The property is situated on a residential road close to local shops and amenities. The open spaces of Church House Gardens are within easy reach. Transport links are provided by Shortlands rail station.

Accommodation

First Floor Reception Room Kitchen Bedroom Bathroom

Exterior

The property benefits from a two private balconies and communal gardens.

Further Information

When purchasing a flat that has a short lease, it is important to understand that in addition to the purchase price, if you wish to extend the lease to 90+ years, you will need to pay a premium to the freeholder. This is done by way of serving a Section 42 notice to the freeholder requesting a lease extension with a suggested price for the extension. The freeholder has the right to refuse the offer and submit a counter notice with their suggested price. If you do not fully understand this process, please ask the auctioneers or a solicitor.

Energy Efficiency Rating (EPC)

Current Rating D

Services

Interested parties are requested to make their own enquiries to the relevant authorities as to the availability of services.

Important Notice to Prospective Buyers:

We draw your attention to the Special Conditions of Sale within the Legal Pack, referring to other charges in addition to the purchase price which may become payable. Such costs may include Search Fees, reimbursement of Sellers costs and Legal Fees, and Transfer Fees amongst others.

Additional Fees

Administration Charge - Purchasers will be required to pay an administration fee of £1,800 inc VAT

Disbursements - Please see the legal pack for any disbursements listed that may become payable by the purchaser on completion.

View Larger Map

Disclaimer: The map preview provided above is for general guidance only and may not accurately reflect the exact location or surrounding buildings. Prospective buyers and interested parties are strongly advised to independently verify the precise location and surroundings before bidding.