For Sale By Auction | 14:00, 04 March 2026 | Lot 22

587 Forest Road, Walthamstow, London, E17 4PP

*Guide | £600,000+ (plus fees)

  • Mixed Use
  • 1 Bedroom
  • Tenure: Freehold

Call the team on 020 7625 9007 for more information

Auction Date

Wed 04/03/2026

Auction Time

14:00

Auction Venue

Unknown

Viewing Times:

Thu 19 Feb

10:00-10:30

Mon 23 Feb

10:00-10:30

Wed 25 Feb

10:00-10:30

Fri 27 Feb

10:00-10:30

Sat 28 Feb

11:30-12:00

Tue 3 Mar

10:00-10:30

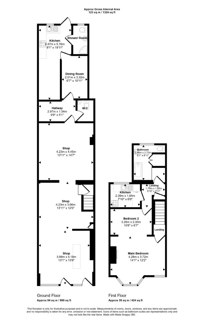
A Vacant Mid Terrace Mixed Use Building Arranged to Provide a Ground Floor Retail Unit and a Ground and First Floor One Bedroom Split Level Flat

The property comprises a mid terrace mixed use building arranged to provide a ground floor retail unit (commercial) and a ground and first floor one bedroom split level flat.

Tenure

Freehold

Location

The property is situated on a mixed use road close to local shops and amenities. The open spaces of Lloyd Park are within easy reach. Transport links are provided by Blackhorse Road underground station (Victoria line) and Wood Street overground station.

Accommodation

Ground Floor Retail Shop Area Two Reception Rooms WC's First Floor Kitchen Bedroom Bathroom

Services

Interested parties are requested to make their own enquiries to the relevant authorities as to the availability of services.

Important Notice to Prospective Buyers:

We draw your attention to the Special Conditions of Sale within the Legal Pack, referring to other charges in addition to the purchase price which may become payable. Such costs may include Search Fees, reimbursement of Sellers costs and Legal Fees, and Transfer Fees amongst others.

Additional Fees

Administration Charge - Purchasers will be required to pay an administration fee of £1,800 inc VAT

Disbursements - Please see the legal pack for any disbursements listed that may become payable by the purchaser on completion.

View Larger Map

Disclaimer: The map preview provided above is for general guidance only and may not accurately reflect the exact location or surrounding buildings. Prospective buyers and interested parties are strongly advised to independently verify the precise location and surroundings before bidding.