For Sale By Auction | 14:00, 04 March 2026 | Lot 27

Flat 38A Ashworth Mansions, Elgin Avenue, Maida Vale, London, W9 1JP

*Guide | £1,100,000+ (plus fees)

  • Flat
  • 4 Bedrooms
  • Tenure: Share of Freehold

Call the team on 020 7625 9007 for more information

Auction Date

Wed 04/03/2026

Auction Time

14:00

Auction Venue

Unknown

Viewing Times:

Wed 18 Feb

14:00-14:30

Tue 24 Feb

10:00-10:30

Sat 28 Feb

10:00-10:30

Tue 3 Mar

10:00-10:30

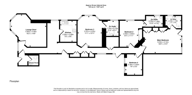
A Vacant Lower Ground Floor Four Bedroom Flat

The property comprises a lower ground floor four bedroom flat situated within a purpose built building arranged over lower ground, ground and three upper floors.

Tenure

Share of Freehold

Location

The property is situated in the highly sought after area of Maida Vale close to local shops and amenities. The open spaces of Paddington Recreation Ground are within easy reach. Transport links are provided by Maida Vale underground station (Bakerloo line) and Queens Park overground station.

Accommodation

Lower Ground Floor Reception Room Kitchen Four Bedrooms (Three with En-Suites) Shower Room GIA Approx: 123 sq m (1,327 sq ft)

Exterior

The property benefits from communal gardens.

Energy Efficiency Rating (EPC)

Current Rating C

Services

Interested parties are requested to make their own enquiries to the relevant authorities as to the availability of services.

Important Notice to Prospective Buyers:

We draw your attention to the Special Conditions of Sale within the Legal Pack, referring to other charges in addition to the purchase price which may become payable. Such costs may include Search Fees, reimbursement of Sellers costs and Legal Fees, and Transfer Fees amongst others.

Additional Fees

Administration Charge - Purchasers will be required to pay an administration fee of £1,800 inc VAT

Disbursements - Please see the legal pack for any disbursements listed that may become payable by the purchaser on completion.

View Larger Map

Disclaimer: The map preview provided above is for general guidance only and may not accurately reflect the exact location or surrounding buildings. Prospective buyers and interested parties are strongly advised to independently verify the precise location and surroundings before bidding.