For Sale By Auction | 09:30, 18 March 2026 | Lot 45

Land to the Rear of 225 Western Road, Southall, Middlesex, UB2 5HS

*Guide | £120,000+ (plus fees)

  • Land
  • Tenure: Freehold

Call the team on 020 7625 9007 for more information

Auction Date

Wed 18/03/2026

Auction Time

09:30

Auction Venue

Live Stream

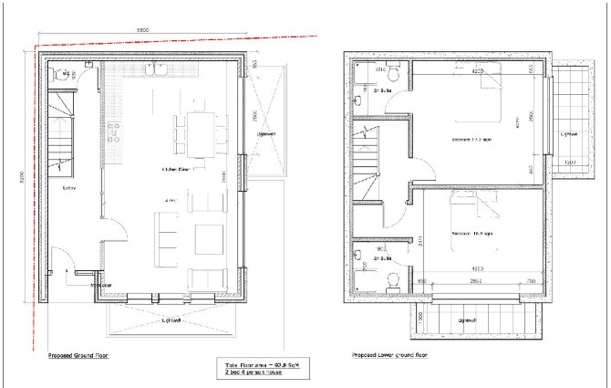
A Vacant Freehold Development Site Measuring Approximately 120 sq m (1,292 sq ft). Offered with Planning Permission for the Erection of a Two Bedroom Detached House

The lot comprises a freehold development site measuring approximately 120 sq m (1,292 sq ft).

Tenure

Freehold

Location

The lot is situated on a residential road close to local shops and amenities. The open spaces of Southall Recreation Ground are within easy reach. Transport links are provided by Southall rail station.

Planning

Ealing London Borough Council granted the following planning permission (ref: 250873FUL) on 20th January 2026 : 'Construction of a two bedroom detached dwelling house in rear garden fronting Manor Way; single storey building with excavation of a basement; associated amenity space, cycle and refuse storage'.

The site area depicted within the plan in the auction particulars is for indicative purposes only. Additionally, any measurements stated may not be exact. Some or all of the plot may comprise adopted highway land and if the site has trees, there may be Tree Preservation Orders in place. Buyers should rely on their own enquiries with regard to precise measurements, any consents or rights over the land and any possible development potential or alternative uses for this site.

Services

Interested parties are requested to make their own enquiries to the relevant authorities as to the availability of services.

Important Notice to Prospective Buyers:

We draw your attention to the Special Conditions of Sale within the Legal Pack, referring to other charges in addition to the purchase price which may become payable. Such costs may include Search Fees, reimbursement of Sellers costs and Legal Fees, and Transfer Fees amongst others.

Additional Fees

Administration Charge - Purchasers will be required to pay an administration fee of £1,800 inc VAT

Disbursements - Please see the legal pack for any disbursements listed that may become payable by the purchaser on completion.

View Larger Map

Disclaimer: The map preview provided above is for general guidance only and may not accurately reflect the exact location or surrounding buildings. Prospective buyers and interested parties are strongly advised to independently verify the precise location and surroundings before bidding.