For Sale By Auction | 09:30, 18 March 2026 | Lot 23

The Village Table Cafe, 40 Park Lane, Queens Quarter, Croydon, Surrey, CR0 1GY

*Guide | £350,000+ (plus fees)

  • Retail Property (high street)
  • Tenure: Leasehold. The property is held on a 250 year lease from 2019 at a peppercorn ground rent.

Call the team on 020 7625 9007 for more information

Auction Date

Wed 18/03/2026

Auction Time

09:30

Auction Venue

Live Stream

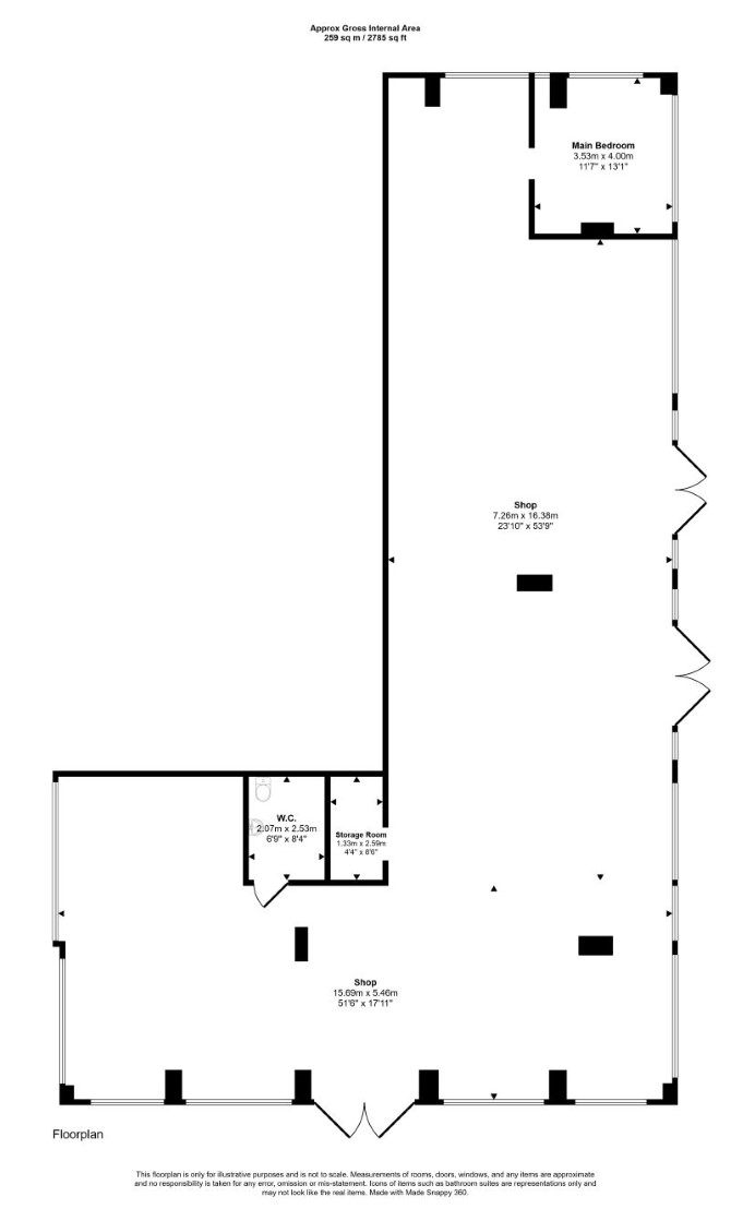
A Ground Floor Commercial Unit Subject to a Lease Producing £43,000 Per Annum

The property comprises a ground floor commercial unit situated within a new development of over 500 apartments and amenities.

Tenure

Leasehold. The property is held on a 250 year lease from 2019 at a peppercorn ground rent.

Location

The property is situated on a mixed use road close to local shops and amenities. The open spaces of Queen's Gardens are within easy reach. Transport links are provided by West Croydon overground station and East Croydon rail station.

Accommodation

Ground Floor Commercial Unit G.I.A Approximately 2,605 sq ft

Tenancy

The property is let to The Village Table Ltd for a term of 10 years commencing 15th December 2025 at a rent of £43,000 per annum. Rent review due 2030. Rent review is index linked subject to increases in CPI with a cap of 5% and minimum of 2% in each year. The tenant has provided a rent deposit of £25,800 (six month's rent plus VAT). There is a break clause in December 2030.

VAT is applicable

Services

Interested parties are requested to make their own enquiries to the relevant authorities as to the availability of services.

Important Notice to Prospective Buyers:

We draw your attention to the Special Conditions of Sale within the Legal Pack, referring to other charges in addition to the purchase price which may become payable. Such costs may include Search Fees, reimbursement of Sellers costs and Legal Fees, and Transfer Fees amongst others.

Additional Fees

Administration Charge - Purchasers will be required to pay an administration fee of £1,800 inc VAT

Disbursements - Please see the legal pack for any disbursements listed that may become payable by the purchaser on completion.

View Larger Map

Disclaimer: The map preview provided above is for general guidance only and may not accurately reflect the exact location or surrounding buildings. Prospective buyers and interested parties are strongly advised to independently verify the precise location and surroundings before bidding.