Withdrawn | Lot 21A

18-20 Prince of Wales Road, Norwich, Norfolk, NR1 1LB

Withdrawn

  • Retail Property (high street)
  • Tenure: Freehold

Call the team on 020 7625 9007 for more information

Auction Date

Wed 18/03/2026

Auction Time

09:30

Auction Venue

Live Stream

Viewing Times:

Tue 10 Mar

14:00-14:30

Thu 12 Mar

14:00-14:30

Sat 14 Mar

14:00-14:30

Tue 17 Mar

10:00-10:30

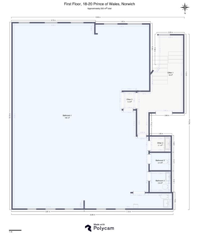
A Vacant Mid Terrace Building Arranged to Provide a 2 x Ground Floor Retail Units and First and Second Floor Office Space. Potential to Convert Uppers to Residential (Subject to Obtaining all Relevant Consents)

The property comprises a mid terrace building arranged to provide a ground floor retail unit and ground, first and second floor office space.

Tenure

Freehold

Location

The property is situated on a mixed use road close to local shops and amenities. The open spaces of Chapelfield Gardens are within easy reach. Transport links are provided by Norwich rail station.

Accommodation

Ground Floor Retail Unit (G.I.A Approximately 986 sq ft) Retail Unit (G.I.A Approximately 1184 sq ft) WC's First Floor Office Unit (G.I.A Approximately 2152 sq ft) WC's Second Floor Office Unit (G.I.A Approximately 2152 sq ft) WC's

VAT

VAT is applicable

Energy Efficiency Rating (EPC)

Current Rating D

Services

Interested parties are requested to make their own enquiries to the relevant authorities as to the availability of services.

Important Notice to Prospective Buyers:

We draw your attention to the Special Conditions of Sale within the Legal Pack, referring to other charges in addition to the purchase price which may become payable. Such costs may include Search Fees, reimbursement of Sellers costs and Legal Fees, and Transfer Fees amongst others.

Additional Fees

Administration Charge - Purchasers will be required to pay an administration fee of £1,800 inc VAT

Disbursements - Please see the legal pack for any disbursements listed that may become payable by the purchaser on completion.

View Larger Map

Disclaimer: The map preview provided above is for general guidance only and may not accurately reflect the exact location or surrounding buildings. Prospective buyers and interested parties are strongly advised to independently verify the precise location and surroundings before bidding.