For Sale By Auction | 09:30, 18 March 2026 | Lot 30A

Land to the Rear 268 West End Lane, West Hampstead, London, NW6 1LJ

Sold After

  • Land
  • Tenure: Freehold

Call the team on 020 7625 9007 for more information

Auction Date

Wed 18/03/2026

Auction Time

09:30

Auction Venue

Live Stream

Viewing Times:

Mon 16 Mar

16:00-16:30

Tue 17 Mar

12:00-12:30

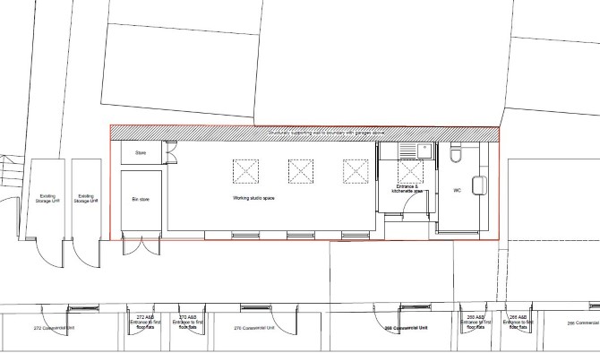
Four Vacant Single Storey Units. Offered With Planning Permission to Convert the Units into an Office (Works have Commenced)

The property comprises four single storey units.

Tenure

Freehold

Location

The units are situated on a residential road close to local shops and amenities. The open spaces of Hampstead Heath are within easy reach. Transport links are provided by West Hampstead overground station, underground station (Jubilee line) and rail station.

Accommodation

Ground Floor 4 x Storage Units

Planning

Camden Borough Council granted the following planning permission (ref: 2019/5372/P) on 5th December 2019 : 'Conversion of existing storage unit into a single storey self contained work unit (Class B1 office)'. Works have commenced.

Services

Interested parties are requested to make their own enquiries to the relevant authorities as to the availability of services.

Important Notice to Prospective Buyers:

We draw your attention to the Special Conditions of Sale within the Legal Pack, referring to other charges in addition to the purchase price which may become payable. Such costs may include Search Fees, reimbursement of Sellers costs and Legal Fees, and Transfer Fees amongst others.

Additional Fees

Administration Charge - Purchasers will be required to pay an administration fee of £1,800 inc VAT

Disbursements - Please see the legal pack for any disbursements listed that may become payable by the purchaser on completion.

View Larger Map

Disclaimer: The map preview provided above is for general guidance only and may not accurately reflect the exact location or surrounding buildings. Prospective buyers and interested parties are strongly advised to independently verify the precise location and surroundings before bidding.