For Sale By Auction | 09:30, 18 March 2026 | Lot 89A

22A Calverley Road, Tunbridge Wells, Kent, TN1 2TB

*Guide | £460,000+ (plus fees)

  • Flat
  • 6 Bedrooms
  • Tenure: Leasehold. The property is held on a 125 year lease from 25th February 2025 (thus approximately 124 years unexpired).

Call the team on 020 7625 9007 for more information

Auction Date

Wed 18/03/2026

Auction Time

09:30

Auction Venue

Live Stream

Viewing Times:

Thu 12 Mar

14:00-14:30

Sat 14 Mar

14:00-14:30

Mon 16 Mar

14:00-14:30

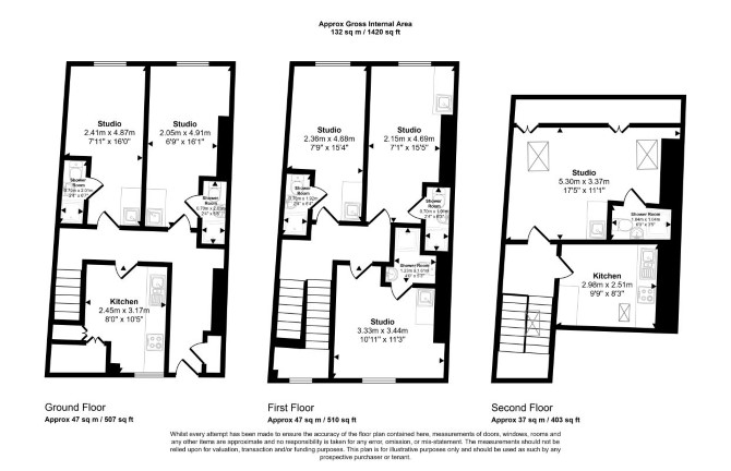
A Vacant First, Second and Third Floor Six Room Split Level Maisonette

The property comprises a first second and third floor six room split level maisonette situated within a mixed use parade arranged over ground and three upper floors.

Tenure

Leasehold. The property is held on a 125 year lease from 25th February 2025 (thus approximately 124 years unexpired).

Six Week Completion Available

Location

The property is situated on a residential road close to local shops and amenities. The open spaces of Calverley Grounds are within easy reach. Transport links are provided by Tunbridge Wells rail station.

Accommodation

First Floor Kitchen Two Letting Rooms (Both with En--Suites) Second Floor Three Letting Rooms (All with En--Suites) Third Floor Kitchen Letting Room (with En-Suite)

EPC Ratings

Flat 1 - C / Flat 2 - C Flat 3 - B / Flat 4 - C Flat 5 - C / Flat 6 - D

Services

Interested parties are requested to make their own enquiries to the relevant authorities as to the availability of services.

Important Notice to Prospective Buyers:

We draw your attention to the Special Conditions of Sale within the Legal Pack, referring to other charges in addition to the purchase price which may become payable. Such costs may include Search Fees, reimbursement of Sellers costs and Legal Fees, and Transfer Fees amongst others.

Additional Fees

Administration Charge - Purchasers will be required to pay an administration fee of £1,800 inc VAT

Disbursements - Please see the legal pack for any disbursements listed that may become payable by the purchaser on completion.

View Larger Map

Disclaimer: The map preview provided above is for general guidance only and may not accurately reflect the exact location or surrounding buildings. Prospective buyers and interested parties are strongly advised to independently verify the precise location and surroundings before bidding.