For Sale By Auction | 09:30, 22 April 2026 | Lot 59

Land to the Rear of 69 Cowley Hill, Borehamwood, Hertfordshire, WD6 5LH

*Guide | £100,000+ (plus fees)

  • Land
  • Tenure: Freehold

Call the team on 020 7625 9007 for more information

Auction Date

Wed 22/04/2026

Auction Time

09:30

Auction Venue

Live Stream

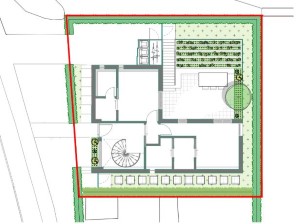
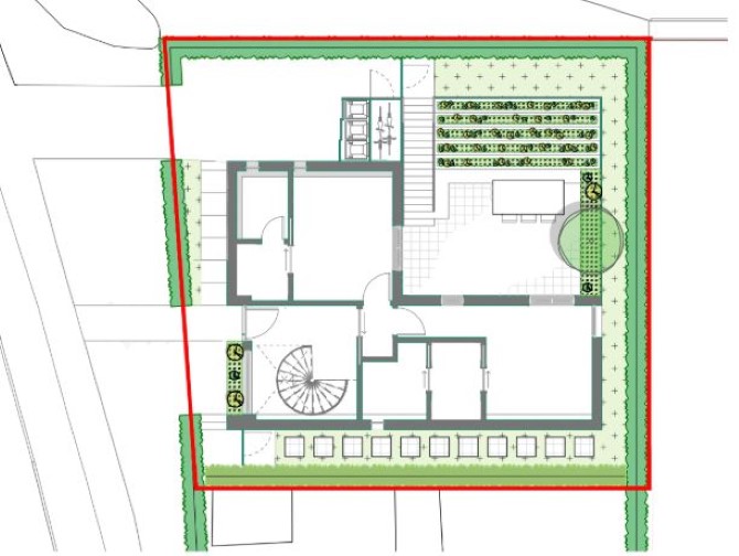
A Plot of Land Measuring Approximately 210 sq m (2,261 sq ft). Offered with Planning Permission for the Erection of a Three Bedroom Dwelling

The lot comprises a plot of land measuring approximately 210 sq m (2,261 sq ft).

Tenure

Freehold

6 Week Completion Available or Earlier if Required

Location

The land is situated on a residential road close to local shops and amenities. The open spaces of Abeford Park are within easy reach. Transport links are provided by Elstree & Borehamwood rail station.

Planning

Hertsmere Borough Council granted the following planning permission (ref: 24/1006/FUL) on 19th March 2026 : 'Erection of a single-storey, three-bedroom dwelling with a habitable basement, including associated car parking (amended description).'

Proposed Accommodation

Lower Ground Floor Reception Room Kitchen WC Utility Room Ground Floor Three Bedrooms (One with En-Suite) Bathroom

Services

Interested parties are requested to make their own enquiries to the relevant authorities as to the availability of services.

Important Notice to Prospective Buyers:

We draw your attention to the Special Conditions of Sale within the Legal Pack, referring to other charges in addition to the purchase price which may become payable. Such costs may include Search Fees, reimbursement of Sellers costs and Legal Fees, and Transfer Fees amongst others.

Additional Fees

Administration Charge - Purchasers will be required to pay an administration fee of £1,800 inc VAT

Disbursements - Please see the legal pack for any disbursements listed that may become payable by the purchaser on completion.

View Larger Map

Disclaimer: The map preview provided above is for general guidance only and may not accurately reflect the exact location or surrounding buildings. Prospective buyers and interested parties are strongly advised to independently verify the precise location and surroundings before bidding.