For Sale By Auction | 09:30, 22 April 2026 | Lot 1

25 Greenhill Park, Harlesden, London, NW10 9AN

Sold £633,000

  • Block of Apartments
  • 6 Bedrooms
  • Tenure: Freehold

Call the team on 020 7625 9007 for more information

Auction Date

Wed 22/04/2026

Auction Time

09:30

Auction Venue

Live Stream

Viewing Times:

Fri 10 Apr

12:15-12:45

Tue 14 Apr

12:15-12:45

Thu 16 Apr

12:15-12:45

Sat 18 Apr

11:00-11:30

Mon 20 Apr

12:15-12:45

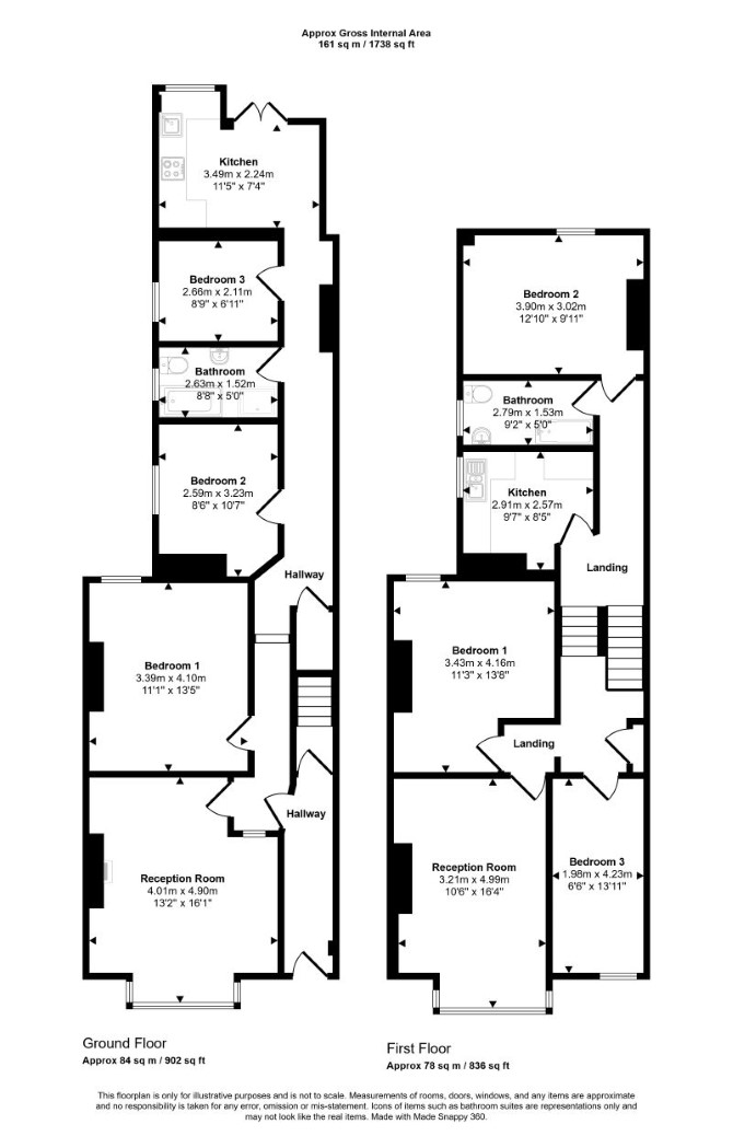
A Vacant Mid Terrace Building Arranged to Provide 2 x Three Bedroom Flats

The property comprises a mid terrace building arranged to provide 2 x three bedroom flats.

Tenure

Freehold

Location

The property is situated on a residential road close to local shops and amenities. The open spaces of Roundwood Park are within easy reach. Transport links are provided by Harlesden underground station (Bakerloo line) and Stonebridge Park rail station.

Accommodation

Ground Floor Reception Room Kitchen Three Bedrooms Bathroom First Floor Reception Room Kitchen Three Bedrooms Bathroom

Exterior

The property benefits from a rear garden.

Services

Interested parties are requested to make their own enquiries to the relevant authorities as to the availability of services.

Important Notice to Prospective Buyers:

We draw your attention to the Special Conditions of Sale within the Legal Pack, referring to other charges in addition to the purchase price which may become payable. Such costs may include Search Fees, reimbursement of Sellers costs and Legal Fees, and Transfer Fees amongst others.

Additional Fees

Administration Charge - Purchasers will be required to pay an administration fee of £1,800 inc VAT

Disbursements - Please see the legal pack for any disbursements listed that may become payable by the purchaser on completion.

View Larger Map

Disclaimer: The map preview provided above is for general guidance only and may not accurately reflect the exact location or surrounding buildings. Prospective buyers and interested parties are strongly advised to independently verify the precise location and surroundings before bidding.