For Sale By Auction | 09:30, 27 May 2026

Flat 6 Regatta Point, 1 Manilla Street, Canary Wharf, London, E14 8JZ

*Guide | £275,000+ (plus fees)

  • Flat
  • 1 Bedroom
  • Tenure: Leasehold. The property is held on a 125 year lease from 1st January 2000 (thus approximately 99 years unexpired).

Call the team on 020 7625 9007 for more information

Auction Date

Wed 27/05/2026

Auction Time

09:30

Auction Venue

Live Stream

A Second Floor One Bedroom Flat Offered with Vacant Possession

The property comprises a second floor one bedroom flat situated within a corner building arranged over ground and three upper floors.

Tenure

Leasehold. The property is held on a 125 year lease from 1st January 2000 (thus approximately 99 years unexpired).

Location

The property is situated on a residential road close to local shops and amenities. The open spaces of Sir John McDougall Gardens are within easy reach. Transport links are provided by Heron Quays Station DLR station and Limehouse rail station.

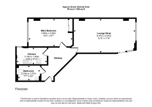
Accommodation

Second Floor Reception Room Kitchen Bedroom Bathroom

Exterior

The property benefits from a private balcony.

Please note that all registered bidders will need to be approved by the seller prior to bidding.

Energy Efficiency Rating (EPC)

Current Rating B

Services

Interested parties are requested to make their own enquiries to the relevant authorities as to the availability of services.

Important Notice to Prospective Buyers:

We draw your attention to the Special Conditions of Sale within the Legal Pack, referring to other charges in addition to the purchase price which may become payable. Such costs may include Search Fees, reimbursement of Sellers costs and Legal Fees, and Transfer Fees amongst others.

Additional Fees

Administration Charge - Purchasers will be required to pay an administration fee of £1,800 inc VAT

Disbursements - Please see the legal pack for any disbursements listed that may become payable by the purchaser on completion.

View Larger Map

Disclaimer: The map preview provided above is for general guidance only and may not accurately reflect the exact location or surrounding buildings. Prospective buyers and interested parties are strongly advised to independently verify the precise location and surroundings before bidding.