For Sale By Auction | 12:00, 21 October 2025

261 Hollinwood Avenue, Chadderton, Oldham, OL9 8DQ

*Guide | £215,000+ (plus fees)

  • Semi-Detached House
  • 3 Bedrooms
  • Tenure: Freehold

Call the team on 0161 925 3254 for more information

Auction Date

Tue 21/10/2025

Auction Time

12:00

Auction Venue

Live Stream

Viewing Times:

Tue 30 Sep

1:30pm-2:00pm

Tue 7 Oct

1:30pm-2:00pm

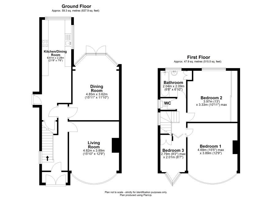
A generous and extended three bedroom semi-detached property occupies a lovely set-back position on Hollinwood Avenue. With neatly maintained gardens offering privacy and kerb appeal, there's off-street parking through a driveway and covered car port. Internally, accommodation comprises entrance hall, lounge, dining room and a kitchen to the ground floor. Upstairs, there are three well-proportioned bedrooms, two of which are double and the main family bathroom with a separate toilet. Externally, the property features a carport to the side, along with gardens at the front and rear Positioned in a sought after area, the property benefits from close proximity to excellent commuter links with the M60 motorway round the corner and Moston train station just a little further up Hollinwood Avenue. You will also find the Metrolink within 1 mile. There are well-regarded primary and secondary schools close by plus plenty of shops/supermarkets and excellent access into Middleton, Oldham and Failsworth. Please note, on inspection evidence of cracking in the plasterwork to some of the internal walls was noted. Some remedial work has been completed and details of this are to be included in the legal pack, together with a certificate of structural adequacy which will be assigned to the successful bidder on completion. Potential bidders are advised to carry out their own research in this regard prior to bidding.

Tenure

Freehold

Ground Floor

Living Room Dining Room Kitchen

First Floor

Bedroom 1 Bedroom 2 Bedroom 3 Bathroom

Energy Efficiency Rating (EPC)

Current Rating D

Services

Interested parties are requested to make their own enquiries to the relevant authorities as to the availability of services.

Local Authority

Oldham Metropolitan Borough Council - Council tax band D

Important Notice to Prospective Buyers:

We draw your attention to the Special Conditions of Sale within the Legal Pack, referring to other charges in addition to the purchase price which may become payable. Such costs may include Search Fees, reimbursement of Sellers costs and Legal Fees, and Transfer Fees amongst others.

Additional Fees

Administration Charge - Purchasers will be required to pay an administration fee of 1.2% inc VAT, subject to a minimum of £1500 inc VAT.

Disbursements - Please see the legal pack for any disbursements listed that may become payable by the purchaser on completion.

View Larger Map

Disclaimer: The map preview provided above is for general guidance only and may not accurately reflect the exact location or surrounding buildings. Prospective buyers and interested parties are strongly advised to independently verify the precise location and surroundings before bidding.