For Sale By Auction | 12:00, 21 October 2025 | Lot 10

237 Broadway, Chadderton, Oldham, OL9 8RR

Sold £265,000

  • Semi-Detached House
  • 5 Bedrooms
  • Tenure: Leasehold

Call the team on 0161 925 3254 for more information

Auction Date

Tue 21/10/2025

Auction Time

12:00

Auction Venue

Live Stream

Viewing Times:

Mon 6 Oct

11:15am-11:45am

Mon 13 Oct

11:15am-11:45am

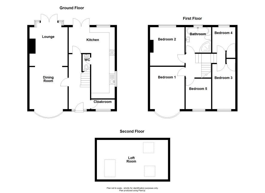
Modernised & extended five bedroom semi-detached property situated on Broadway in the popular residential area of Chadderton. Easy access to excellent local schools and amenities, public transport links and a short drive from the Northwest motorway network. The property offers generous family living accommodation briefly comprising of entrance hall, cloakroom, open plan lounge & dining room, spacious kitchen with two ovens, 2 microwaves, dishwasher, washer and separate dryer, downstairs WC, first floor landing, five bedrooms and four piece family bathroom. An attic room with front & rear facing Velux windows can be accessed via drop down ladders off the first floor landing. Externally to the front of the property are double gates leading to a substantial drive with hedged and fenced boundary. To the rear of the property is a south facing garden with paved patio area with steps leading to a lawned garden and additional wooden decked patio. The property further benefits from UPVC double glazed Everest windows and gas central heating. Interested parties should be aware that the property has had bamboo growing in the rear garden and buyers are advised to do their own research in this regard. Lease Length - 997 years from 2 September 1937 Ground Rent - £5

Tenure

Leasehold

Ground Floor

Cloakroom Lounge Dining Room Kitchen

First Floor

Bedroom 1 Bedroom 2 Bedroom 3 Bedroom 4 Bedroom 5 Bathroom

Energy Efficiency Rating (EPC)

Current Rating C

Services

Interested parties are requested to make their own enquiries to the relevant authorities as to the availability of services.

Local Authority

Oldham Metropolitan Borough Council - Council tax band B

Important Notice to Prospective Buyers:

We draw your attention to the Special Conditions of Sale within the Legal Pack, referring to other charges in addition to the purchase price which may become payable. Such costs may include Search Fees, reimbursement of Sellers costs and Legal Fees, and Transfer Fees amongst others.

Additional Fees

Administration Charge - Purchasers will be required to pay an administration fee of 1.2% inc VAT, subject to a minimum of £1500 inc VAT.

Disbursements - Search Fees £300 inc VAT.

Please see the legal pack for any disbursements listed that may become payable by the purchaser on completion.

View Larger Map

Disclaimer: The map preview provided above is for general guidance only and may not accurately reflect the exact location or surrounding buildings. Prospective buyers and interested parties are strongly advised to independently verify the precise location and surroundings before bidding.