For Sale By Auction | 12:00, 24 March 2026 | Lot 19

56 Bromwich Street, Bolton, BL2 1JE

*Guide | £185,000+ (plus fees)

  • Semi-Detached House
  • Tenure: Leasehold

Call the team on 0161 925 3254 for more information

Auction Date

Tue 24/03/2026

Auction Time

12:00

Auction Venue

Live Stream

Viewing Times:

Fri 13 Mar

11:30am-12:00pm

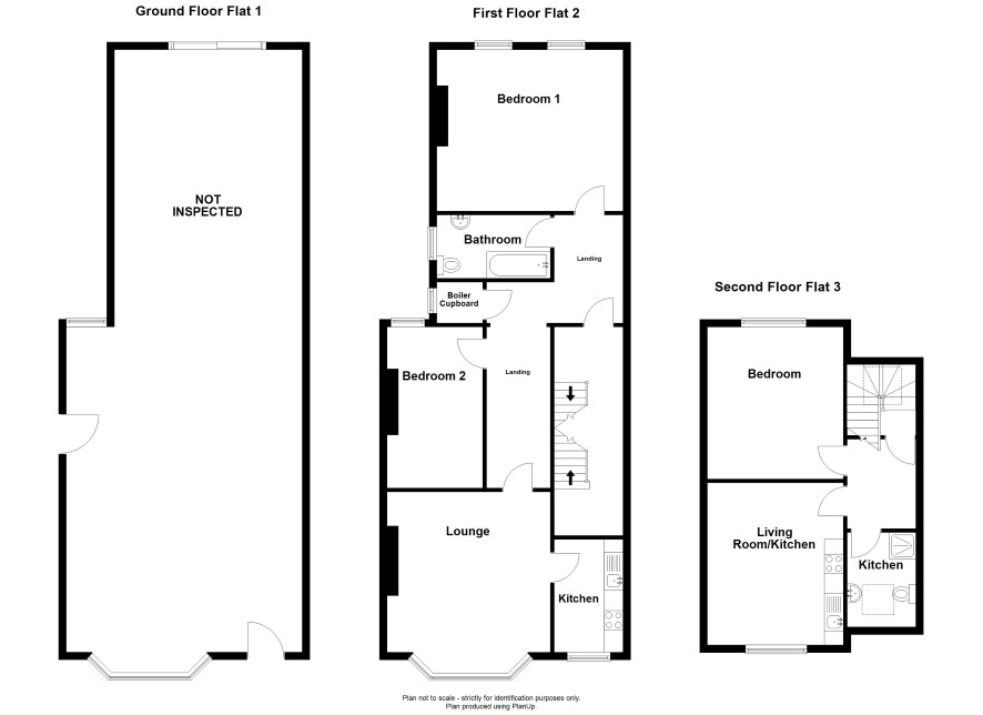
A substantial semi-detached property set over three floors with three self-contained rented flats. Producing a combined gross of circa £22,680 which equates to an attractive 12.26% return based against the guide price - certainly one for addition to any discerning investors portfolio. (Flat 1) Two bedrooms ground floor flat, Rent £700 pcm (86 sqm) (Flat 2) Two bedrooms first floor flat, Rent £695 pcm (88 sqm) (Flat 3) One bedrooms second floor flat, Rent £495 pcm (35 sqm) Situated in a prominent position conveniently located for daily amenities and within easy reach of Bolton Town Centre, Motorway & Rail Links. Auction house are yet to inspect flat 1. Lease term - 900 years from 29 June 1896 Ground Rent - £TBC

Tenure

Leasehold

Energy Efficiency Rating (EPC)

Current Rating C, C, D

Services

Interested parties are requested to make their own enquiries to the relevant authorities as to the availability of services.

Local Authority

Bolton Metropolitan Borough Council - Band A

Important Notice to Prospective Buyers:

We draw your attention to the Special Conditions of Sale within the Legal Pack, referring to other charges in addition to the purchase price which may become payable. Such costs may include Search Fees, reimbursement of Sellers costs and Legal Fees, and Transfer Fees amongst others.

Additional Fees

Administration Charge - In addition to the deposit Purchasers will be required to pay an administration fee of 1.5% inc VAT, subject to a minimum of £2,100 inc VAT.

Disbursements - Search Fees: £360 inc VAT.

Please see the legal pack for any disbursements listed that may become payable by the purchaser on completion.

View Larger Map

Disclaimer: The map preview provided above is for general guidance only and may not accurately reflect the exact location or surrounding buildings. Prospective buyers and interested parties are strongly advised to independently verify the precise location and surroundings before bidding.