For Sale By Auction | 12:00, 24 March 2026 | Lot 17

3 Tower Hill, Sowerby Bridge, West Yorkshire, HX6 2EQ

*Guide | £145,000+ (plus fees)

  • Mixed Use
  • 3 Bedrooms
  • Tenure: Freehold

Call the team on 0161 925 3254 for more information

Auction Date

Tue 24/03/2026

Auction Time

12:00

Auction Venue

Live Stream

Viewing Times:

Tue 10 Mar

11:45am-12:15pm

Tue 17 Mar

11:45am-12:15pm

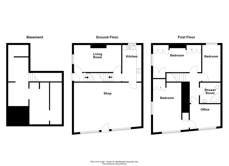
An excellent opportunity to acquire a mixed-use investment property situated just off the high street in the popular market town of Sowerby Bridge. The property comprises a ground floor retail unit together with a spacious three/four bedroom flat above, offering strong potential for investors, owner-occupiers or those seeking a value-add opportunity. Both the commercial and residential elements are currently vacant, allowing purchasers flexibility for letting, resale, or occupation and potential for dual rental income. Ground Floor – Retail Unit with shop front, kitchen, living room/office & access to the basement. The commercial unit offers a versatile layout suitable for a variety of retail or office uses (subject to any necessary consents). First Floor – Residential Flat with side entrance (which could easily be adapted to provide a private entrance solely for the flat), three bedrooms, additional office/fourth bedroom and shower room. The flat provides spacious accommodation with flexibility for three or four bedrooms, making it attractive for family letting or HMO potential (subject to necessary consents). Multi-room basement space, useful for storage or ancillary use. The property occupies a convenient position close to local shops, amenities and transport links within Sowerby Bridge town centre. The area benefits from good commuter access and a range of independent retailers, cafés and services, making it an established trading location. The building offers scope to enhance value through refurbishment or reconfiguration, ideal for investors, developers or owner-occupiers.

Tenure

Freehold

Ground Floor

Lounge Kitchen Shop

First Floor

Bedroom 1 Bedroom 2 Bedroom 3 Office Shower Room

Energy Efficiency Rating (EPC)

Current Rating C,D

Services

Interested parties are requested to make their own enquiries to the relevant authorities as to the availability of services.

Local Authority

Calderdale Metropolitan Borough Council - Band B

Important Notice to Prospective Buyers:

We draw your attention to the Special Conditions of Sale within the Legal Pack, referring to other charges in addition to the purchase price which may become payable. Such costs may include Search Fees, reimbursement of Sellers costs and Legal Fees, and Transfer Fees amongst others.

Additional Fees

Administration Charge - In addition to the deposit Purchasers will be required to pay an administration fee of 1.5% inc VAT, subject to a minimum of £2,100 inc VAT.

Disbursements - Please see the legal pack for any disbursements listed that may become payable by the purchaser on completion.

View Larger Map

Disclaimer: The map preview provided above is for general guidance only and may not accurately reflect the exact location or surrounding buildings. Prospective buyers and interested parties are strongly advised to independently verify the precise location and surroundings before bidding.