For Sale By Auction | 12:00, 17 July 2024 | Lot 8

23 Levens Drive, Heysham, Morecambe, Lancashire LA3 1JN

Sold £131,000

  • Bungalow
  • 2 Bedrooms
  • Tenure: Freehold

Call the team on 01772 772450 for more information

Auction Date

Wed 17/07/2024

Auction Time

12:00

Auction Venue

Online Auction

Viewing Times:

Wed 3 Jul

13:00-13:30

Tue 9 Jul

10:15-10:45

Vacant Two Bedroom Semi Detached True Bungalow

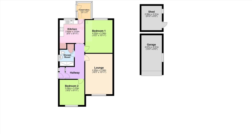
The accommodation comprises entrance hallway, reception room, dining kitchen, two bedrooms and a shower room. Externally there are gardens front and rear, driveway and garage. The property is situated in a sought after residential area close to local amenities and well placed for transport links. Tenure: Freehold Title number: LA891629 Council Tax Band : B Local Authority: Lancaster Finance is available on this lot. For a decision-in-principle visit togethermoney.com/amydip/

Tenure

Freehold

IMPORTANT INFORMATION

Buying at auction is a contractual commitment, you are legally obliged to buy the lot on the terms of the sale memorandum at the price you bid. If you are the successful bidder, you are required to pay the deposit and auction fees immediately. As agent for the seller, we treat any failure to satisfy your obligations as your repudiation of the contract and the seller may then have a claim against you for breach of contract. You must not bid unless you wish to be bound by the common conditions of auction.

ANTI-MONEY LAUNDERING REGULATIONS

In accordance with Anti-Money Laundering Regulations, two forms of identification and confirmation of the source of funding will be required from the successful purchaser. Every effort has been made to confirm the accuracy of the lot details including any defect in the title both with the vendor and their solicitor. Auction House will not be held responsible for any failure to disclose any such defects. Any purchasers choosing to buy without viewing in person are doing so at their own risk and acknowledge that the auctioneer will not be held responsible for any issues that may arise due to them being unintentionally missed from the video or sales particulars. Please refer to legal pack for additional fees and the Auction Information document for guidance prior to bidding. Local Authority

Energy Efficiency Rating (EPC)

Current Rating D

Local Authority

Lancaster City Council

Solicitors

Birchall Blackburn Law, Ref: Jane Lockwood, Tel: 01772 552187

Offered in association with

FH Morecambe

Important Notice to Prospective Buyers:

We draw your attention to the Special Conditions of Sale within the Legal Pack, referring to other charges in addition to the purchase price which may become payable. Such costs may include Search Fees, reimbursement of Sellers costs and Legal Fees, and Transfer Fees amongst others.

Additional Fees

Buyer's Premium - £1000 inc VAT payable on exchange of contracts.

Administration Charge - 1.98% inc VAT of the purchase price, subject to a minimum of £1980 inc VAT, payable on exchange of contracts.

Disbursements - Please see the legal pack for any disbursements listed that may become payable by the purchaser on completion.

View Larger Map

Disclaimer: The map preview provided above is for general guidance only and may not accurately reflect the exact location or surrounding buildings. Prospective buyers and interested parties are strongly advised to independently verify the precise location and surroundings before bidding.