Sold Prior

147 Manchester Road, Swinton, Manchester, Greater Manchester M27 4FH

Sold Prior

  • Retail Property (out of town)
  • Tenure: Freehold

Call the team on 01772 772450 for more information

Auction Date

Wed 18/09/2024

Auction Time

12:00

Auction Venue

Online Auction

Tenanted Two Storey Salon Producing £9,000 pa

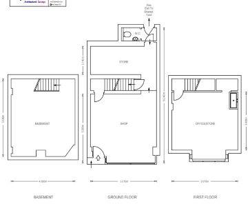
Two storey semi-detached retail unit currently let and trading as a hair and beauty salon for 3 years from August 2023. The rent being £9,000 pax. The lease incorporates a tenant option to determine at the end of the 2nd year, provided 6 months’ notice is given. The building briefly provides the following accommodation:- Ground Floor – front salon, rear treatment room, kitchenette and WC First Floor – treatment room Basement – store room (lit and heated) The property benefits from double glazing, gas fired central heating, roller shutter security to the shop front, rear yard and forecourt to the front which could be utilised for parking or other uses. Location Prominently located fronting Manchester Road (A6) close to the junction with A580 and approximately 4 miles north west of Manchester City Centre. Tenure: freehold Title number: MAN390581 Finance is available on this lot. For a decision-in-principle visit togethermoney.com/amydip/

Tenure

Freehold

IMPORTANT INFORMATION

Buying at auction is a contractual commitment, you are legally obliged to buy the lot on the terms of the sale memorandum at the price you bid. If you are the successful bidder, you are required to pay the deposit and auction fees immediately. As agent for the seller, we treat any failure to satisfy your obligations as your repudiation of the contract and the seller may then have a claim against you for breach of contract. You must not bid unless you wish to be bound by the common conditions of auction.

ANTI-MONEY LAUNDERING REGULATIONS

In accordance with Anti-Money Laundering Regulations, two forms of identification and confirmation of the source of funding will be required from the successful purchaser. Every effort has been made to confirm the accuracy of the lot details including any defect in the title both with the vendor and their solicitor. Auction House will not be held responsible for any failure to disclose any such defects. Any purchasers choosing to buy without viewing in person are doing so at their own risk and acknowledge that the auctioneer will not be held responsible for any issues that may arise due to them being unintentionally missed from the video or sales particulars. Please refer to legal pack for additional fees and the Auction Information document for guidance prior to bidding.

Energy Efficiency Rating (EPC)

Current Rating E

Local Authority

Salford City Council

Solicitors

Read Roper & Read, Ref: Read Roper & Read

Important Notice to Prospective Buyers:

We draw your attention to the Special Conditions of Sale within the Legal Pack, referring to other charges in addition to the purchase price which may become payable. Such costs may include Search Fees, reimbursement of Sellers costs and Legal Fees, and Transfer Fees amongst others.

Additional Fees

Administration Charge - 1.98% inc VAT of the purchase price, subject to a minimum of £1980 inc VAT, payable on exchange of contracts.

Disbursements - Please see the legal pack for any disbursements listed that may become payable by the purchaser on completion.

View Larger Map

Disclaimer: The map preview provided above is for general guidance only and may not accurately reflect the exact location or surrounding buildings. Prospective buyers and interested parties are strongly advised to independently verify the precise location and surroundings before bidding.