For Sale By Auction | 12:00, 12 November 2025 | Lot 43

104-108 Abbey Street, Accrington, Lancashire BB5 1EE

*Guide | £150,000 - £200,000 (plus fees)

  • Block of Apartments
  • Tenure: Freehold

Call the team on 01772 772450 for more information

Auction Date

Wed 12/11/2025

Auction Time

12:00

Auction Venue

Online Auction

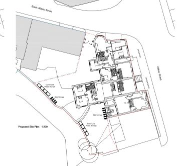
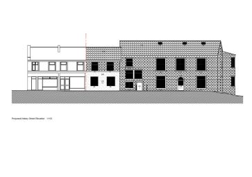
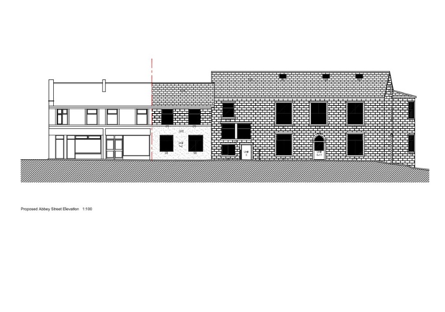
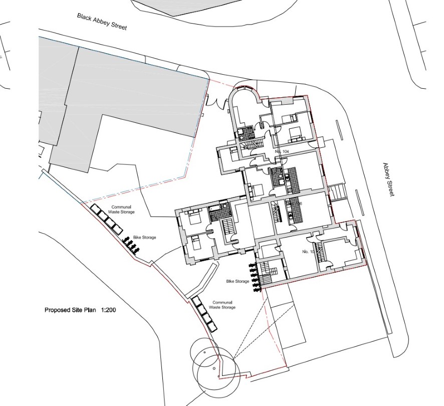
Development Opportunity – Planning Submitted for 1 no. House & 10 no. Apartments

Residential development opportunity to acquire a former coach house plus retail/office building, with planning submitted (January 2024) for full conversion, part change of use and part refurbishment of existing building(s) to form one dwellinghouse and 10 no. apartments with associated alterations. Planning reference 11/24/0021. Note parts of the property are Grade II listed. Located on the fringe of Accrington town centre fronting Abbey Street at the junction of Black Abbey Street. Tenure: Freehold Title number: LA922094 & LAN159036 Local Authority: Hyndburn Finance is available on this lot. For a decision-in-principle visit togethermoney.com/amydip/

Tenure

Freehold

IMPORTANT INFORMATION

Buying at auction is a contractual commitment, you are legally obliged to buy the lot on the terms of the sale memorandum at the price you bid. If you are the successful bidder, you are required to pay the deposit and auction fees immediately. As agent for the seller, we treat any failure to satisfy your obligations as your repudiation of the contract and the seller may then have a claim against you for breach of contract. You must not bid unless you wish to be bound by the common conditions of auction.

ANTI-MONEY LAUNDERING REGULATIONS

In accordance with Anti-Money Laundering Regulations, two forms of identification and confirmation of the source of funding will be required from the successful purchaser. Every effort has been made to confirm the accuracy of the lot details including any defect in the title both with the vendor and their solicitor. Auction House will not be held responsible for any failure to disclose any such defects. Any purchasers choosing to buy without viewing in person are doing so at their own risk and acknowledge that the auctioneer will not be held responsible for any issues that may arise due to them being unintentionally missed from the video or sales particulars. Please refer to legal pack for additional fees and the Auction Information document for guidance prior to bidding.

Energy Efficiency Rating (EPC)

Current Rating E

Local Authority

Hyndburn Borough Council

Important Notice to Prospective Buyers:

We draw your attention to the Special Conditions of Sale within the Legal Pack, referring to other charges in addition to the purchase price which may become payable. Such costs may include Search Fees, reimbursement of Sellers costs and Legal Fees, and Transfer Fees amongst others.

Additional Fees

Administration Charge - 2.5% inc VAT of the purchase price, subject to a minimum of £2500 inc VAT, payable on exchange of contracts.

Disbursements - Please see the legal pack for any disbursements listed that may become payable by the purchaser on completion.

View Larger Map

Disclaimer: The map preview provided above is for general guidance only and may not accurately reflect the exact location or surrounding buildings. Prospective buyers and interested parties are strongly advised to independently verify the precise location and surroundings before bidding.