For Sale By Auction | 12:00, 12 November 2025 | Lot 65

Whins Barns, Sabden, Clitheroe, Lancashire BB7 9HP

*Guide | £375,000 (plus fees)

  • Barn
  • Tenure: Freehold

Call the team on 01772 772450 for more information

Auction Date

Wed 12/11/2025

Auction Time

12:00

Auction Venue

Online Auction

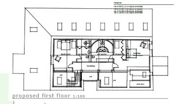
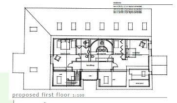
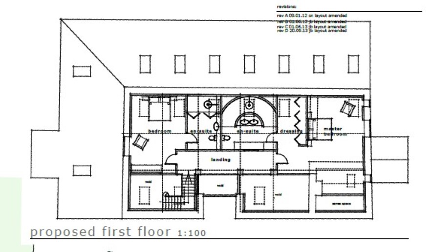
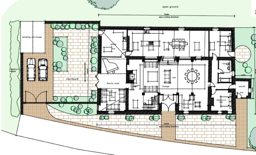
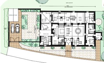
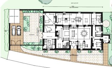
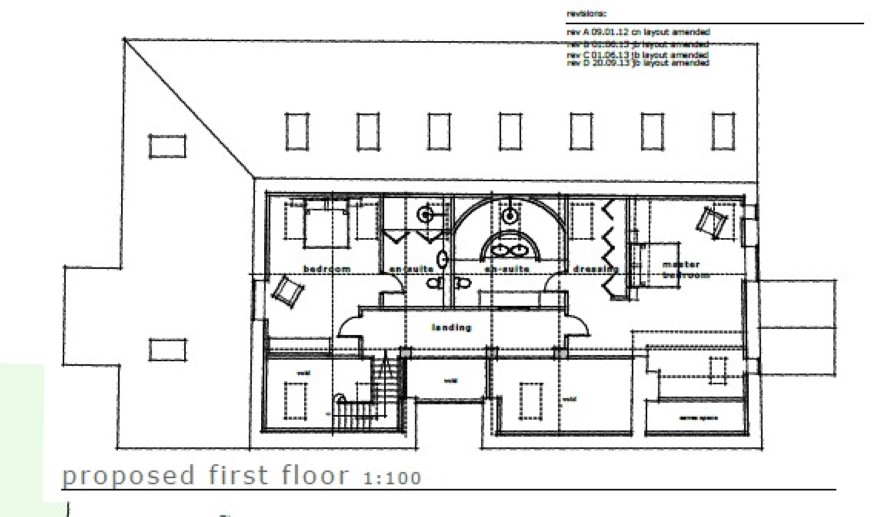
Barn with Planning for Conversion to Four Bedroom Detached

A private access driveway leads up to what is currently a derelict stone-built barn sat on approx. 1.44 acres with planning permission for a four-bedroom detached dwelling overlooking stunning countryside views. Planning Permission: Ref 3/2013/0842 via Ribble Valley planning portal confirms planning permission was granted in 2014 for a four-bedroom detached dwelling with a certificate of lawfulness being available from March 2017 confirming the planning has been preserved. For more information relating to the planning, please refer to the legal pack and Ribble Valley planning portal. Accommodation: Current planning provides accommodation over two floors totalling 6750 sqft / 627 m2. To the ground floor: entrance hallway, library/study, living room, family room, kitchen/diner, two bedrooms and a bathroom. To the first floor: landing area, primary bedroom with dressing area and an en-suite shower room along with a further bedroom and en-suite shower room. Externally: gardens surrounding the property along with a courtyard and off-road parking. Tenure: Freehold Title number: LAN247575 Council Tax Band: H Local Authority: Ribble Valley Finance is available on this lot. For a decision-in-principle visit togethermoney.com/amydip/

Tenure

Freehold

IMPORTANT INFORMATION

Buying at auction is a contractual commitment, you are legally obliged to buy the lot on the terms of the sale memorandum at the price you bid. If you are the successful bidder, you are required to pay the deposit and auction fees immediately. As agent for the seller, we treat any failure to satisfy your obligations as your repudiation of the contract and the seller may then have a claim against you for breach of contract. You must not bid unless you wish to be bound by the common conditions of auction.

ANTI-MONEY LAUNDERING REGULATIONS

In accordance with Anti-Money Laundering Regulations, two forms of identification and confirmation of the source of funding will be required from the successful purchaser. Every effort has been made to confirm the accuracy of the lot details including any defect in the title both with the vendor and their solicitor. Auction House will not be held responsible for any failure to disclose any such defects. Any purchasers choosing to buy without viewing in person are doing so at their own risk and acknowledge that the auctioneer will not be held responsible for any issues that may arise due to them being unintentionally missed from the video or sales particulars. Please refer to legal pack for additional fees and the Auction Information document for guidance prior to bidding.

Local Authority

Ribble Valley Borough Council

Solicitors

Priority Law Limited, 5300 Lakeside, Ref: Priority Law Limited

Important Notice to Prospective Buyers:

We draw your attention to the Special Conditions of Sale within the Legal Pack, referring to other charges in addition to the purchase price which may become payable. Such costs may include Search Fees, reimbursement of Sellers costs and Legal Fees, and Transfer Fees amongst others.

Additional Fees

Administration Charge - 2.5% inc VAT of the purchase price, subject to a minimum of £2500 inc VAT, payable on exchange of contracts.

Disbursements - Please see the legal pack for any disbursements listed that may become payable by the purchaser on completion.

View Larger Map

Disclaimer: The map preview provided above is for general guidance only and may not accurately reflect the exact location or surrounding buildings. Prospective buyers and interested parties are strongly advised to independently verify the precise location and surroundings before bidding.