For Sale By Auction | 12:00, 15 April 2026 | Lot 54

325 & 325A Wilmslow Road, Fallowfield, Manchester, Greater Manchester M14 6NW

*Guide | £425,000 (plus fees)

  • Retail Property (high street)
  • Tenure: Freehold

Call the team on 01772 772450 for more information

Auction Date

Wed 15/04/2026

Auction Time

12:00

Auction Venue

Online Auction

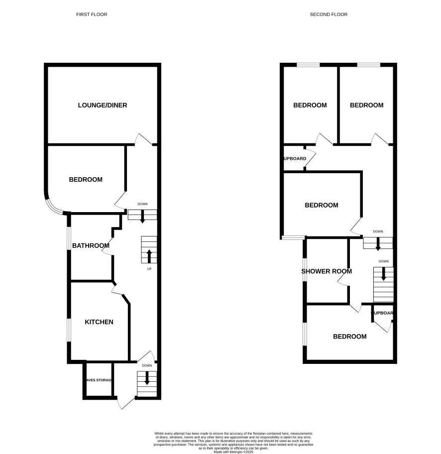
Tenanted Commercial Unit Plus Five Bed HMO – Part Let Producing £16,000 pax. – ERV Approx £49,804 pa

Mixed use three storey property which briefly comprises a ground floor and basement commercial unit plus 5 bed residential HMO to the upper floors, accessed from the rear. Tenancies The ground floor and basement is currently let to private individuals t/as Tzatziki’s Greek Takeaway & Deli for a term of 12 years from 24th December 2015 at a current passing rent of £16,000 pax. Please refer to the legal pack for the lease. The upper floors are currently vacant, however were previously let to students at £2,817 pcm. Location Situated in a prime location of Fallowfield village, housing Manchester University’s Fallowfield Campus. Nearby occupiers include Sainsbury's, McDonalds, Nando’s, Wetherspoons (The Great Central), Starbucks and Costa Coffee. Manchester City Centre is approximately 3 miles to the north. Tenure: Freehold Title number: LA133104 Council Tax Band : A Local Authority: Manchester Finance is available on this lot. For a decision-in-principle visit togethermoney.com/amydip/

Tenure

Freehold

IMPORTANT INFORMATION

Buying at auction is a contractual commitment, you are legally obliged to buy the lot on the terms of the sale memorandum at the price you bid. If you are the successful bidder, you are required to pay the deposit and auction fees immediately. As agent for the seller, we treat any failure to satisfy your obligations as your repudiation of the contract and the seller may then have a claim against you for breach of contract. You must not bid unless you wish to be bound by the common conditions of auction.

ANTI-MONEY LAUNDERING REGULATIONS

In accordance with Anti-Money Laundering Regulations, two forms of identification and confirmation of the source of funding will be required from the successful purchaser. Every effort has been made to confirm the accuracy of the lot details including any defect in the title both with the vendor and their solicitor. Auction House will not be held responsible for any failure to disclose any such defects. Any purchasers choosing to buy without viewing in person are doing so at their own risk and acknowledge that the auctioneer will not be held responsible for any issues that may arise due to them being unintentionally missed from the video or sales particulars. Please refer to legal pack for additional fees and the Auction Information document for guidance prior to bidding.

Energy Efficiency Rating (EPC)

Current Rating 325 - B, 325A - C

Local Authority

Manchester City Council

Solicitors

Kuits Solicitors, Ref: Kuits Solicitors

Important Notice to Prospective Buyers:

We draw your attention to the Special Conditions of Sale within the Legal Pack, referring to other charges in addition to the purchase price which may become payable. Such costs may include Search Fees, reimbursement of Sellers costs and Legal Fees, and Transfer Fees amongst others.

Additional Fees

Administration Charge - 2.75% inc VAT of the purchase price, subject to a minimum of £2750 inc VAT, payable on exchange of contracts.

Disbursements - Please see the legal pack for any disbursements listed that may become payable by the purchaser on completion.

View Larger Map

Disclaimer: The map preview provided above is for general guidance only and may not accurately reflect the exact location or surrounding buildings. Prospective buyers and interested parties are strongly advised to independently verify the precise location and surroundings before bidding.