For Sale By Auction | 14:00, 26 February 2026

Former United Free Church, Aberdeen, Aberdeenshire AB42 3NB

*Guide | £79,500 (plus fees)

  • Mixed Use
  • Tenure: Freehold

Call the team on 0141 339 4466 for more information

Auction Date

Thu 26/02/2026

Auction Time

14:00

Auction Venue

Live Stream

Commercial to Residential Opportunity

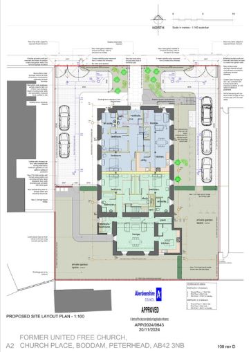
We are delighted to present to auction this unique commercial to residential development opportunity in the Aberdeenshire coastal village of Boddam, approximately 3.5 miles south of Peterhead. The Former United Free Church enjoys prominent position on Church Place, close to Boddam village centre, and offers investors and developers an exciting residential project. Planning permission has been granted under Aberdeenshire Planning Reference APP/2024/0643 in November 2024 to create two spacious homes (1 x 3 bed, and 1 x 4 bed) over two levels within this beautiful granite building, with outstanding GDV potential for prospective buyers. The competitive guide price, and fantastic end value potential is sure to attract strong levels of interest. As such, early viewing is essential for a property that will not be around for long.

Tenure

Freehold

Area

The coastal village of Boddam lies approximately 3.5 miles south of Peterhead, with Aberdeen approximately 28 miles to the south. A range of local facilities are within the village, and the Buchan Braes business centre offers further options. Commuters can easily access Ellon and Aberdeen by road and via the Ellon Park & Ride facility, and Aberdeen airport is around a 30 mile drive south.

Local Authority

Aberdeenshire Council

Important Notice to Prospective Buyers:

We draw your attention to the Special Conditions of Sale within the Legal Pack, referring to other charges in addition to the purchase price which may become payable. Such costs may include Search Fees, reimbursement of Sellers costs and Legal Fees, and Transfer Fees amongst others.

Additional Fees

Administration Charge - 3.6% inc VAT of the purchase price, subject to a minimum of £3600 inc VAT, payable on exchange of contracts.

Disbursements - Please see the legal pack for any disbursements listed that may become payable by the purchaser on completion.

View Larger Map

Disclaimer: The map preview provided above is for general guidance only and may not accurately reflect the exact location or surrounding buildings. Prospective buyers and interested parties are strongly advised to independently verify the precise location and surroundings before bidding.