For Sale By Auction | 14:00, 26 March 2026

Annfield, 53 George Street, Hunters Quay, Dunoon, Argyll And Bute PA23 8JX

*Guide | £275,000 (plus fees)

  • Semi-Detached House
  • 8 Bedrooms
  • Tenure: Freehold

Call the team on 0141 339 4466 for more information

Auction Date

Thu 26/03/2026

Auction Time

14:00

Auction Venue

Live Stream

Seven bedroom detached house

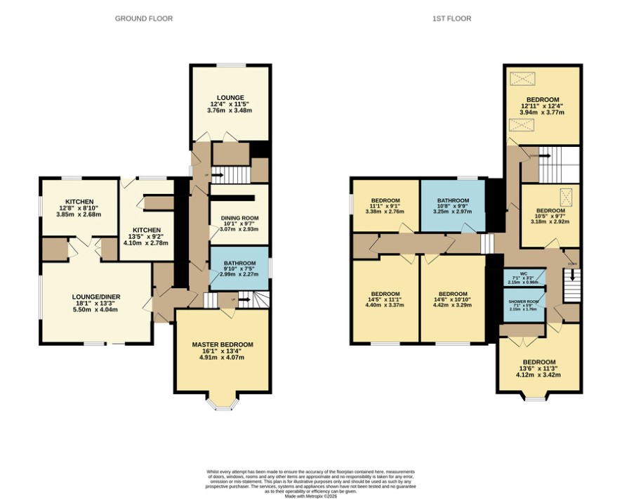
A rare opportunity to acquire a substantial semi-detached property in the highly desirable village of Hunters Quay, with a 29% discount from the home report value of £390,000 based on Guide Price. Formerly operated as an HMO and now presented as a single residential dwelling, Annfield offers exceptionally generous and flexible accommodation extending to ten principal apartments. The ground floor comprises a spacious lounge/diner, two kitchens, a sitting room, separate dining room, bathroom and a bedroom featuring an attractive bay window. The upper floor provides six further bedrooms together with a bathroom, shower room and separate WC. The scale and configuration of the accommodation offers significant scope for reconfiguration or reinstatement for multi-occupancy use, depending on requirements and permissions. Externally, the property features garden grounds to the front, side and rear, incorporating a driveway, patio area, lawn and garden sheds. Council Tax Band: A.

Tenure

Freehold

Area

Hunters Quay is set along the shores of the Firth of Clyde and is within walking distance of the Western Ferries terminal, offering regular vehicle and passenger crossings to Gourock, where rail connections provide straightforward access to Glasgow. The nearby town centre offers a wide range of amenities including schools, hospital, supermarkets, leisure facilities, golf course and a variety of independent shops, cafés and restaurants. The surrounding area is renowned for its natural beauty and outdoor pursuits, adding further appeal to this already impressive property. Offered for sale by auction, this is an excellent opportunity to secure a substantial coastal property with considerable potential in a sought-after West Coast location.

Energy Efficiency Rating (EPC)

Current Rating D

Local Authority

Argyll and Bute Council

Important Notice to Prospective Buyers:

We draw your attention to the Special Conditions of Sale within the Legal Pack, referring to other charges in addition to the purchase price which may become payable. Such costs may include Search Fees, reimbursement of Sellers costs and Legal Fees, and Transfer Fees amongst others.

Additional Fees

Administration Charge - 3.6% inc VAT of the purchase price, subject to a minimum of £3600 inc VAT, payable on exchange of contracts.

Disbursements - Please see the legal pack for any disbursements listed that may become payable by the purchaser on completion.

View Larger Map

Disclaimer: The map preview provided above is for general guidance only and may not accurately reflect the exact location or surrounding buildings. Prospective buyers and interested parties are strongly advised to independently verify the precise location and surroundings before bidding.