For Sale By Auction | 14:00, 21 May 2026

The Old Mission Church, Bualadubh, Isle Of South Uist, Na H-Eileanan Siar HS8 5RQ

*Guide | £25,000 (plus fees)

  • Property For Sale
  • Tenure: Freehold

Call the team on 0141 339 4466 for more information

Auction Date

Thu 21/05/2026

Auction Time

14:00

Auction Venue

Live Stream

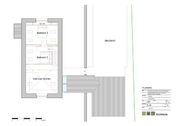
Category C Listed Church with planning for three bedroom house

A rare chance to acquire a Category C listed former mission church set within the dramatic island landscape of South Uist. Now derelict, the building requires a full redevelopment, presenting an exceptional project for those looking to restore and repurpose a historic structure. Planning permission and listed building consent have been granted for conversion into a three bedroom detached home, with the CGI visual highlighting the impressive potential of the approved design. The proposed scheme blends contemporary living with the retained character of the original stone church, in keeping with its listed status. The property is in a significant state of disrepair and is suited to experienced builders, developers, or self build enthusiasts seeking a distinctive project. Generous surrounding grounds and open rural views further enhance the appeal of this unique island site. South Uist is renowned for its dramatic coastline, white sand beaches, wildlife, and strong community culture. Once completed, the development could serve as a striking permanent residence, holiday home, or investment property (subject to consents). A distinctive and increasingly scarce redevelopment opportunity in a remarkable Hebridean setting. Planning details can be viewed on the Western Isles planning portal under references 25/00376/PPD (planning permission) and 25/00408/LBC (listed building consent).

Tenure

Freehold

Area

South Uist is a sought after island location in the Outer Hebrides, known for its wide beaches, open landscapes and strong community. Local amenities can be found in Daliburgh and Lochboisdale, with ferry links to the mainland and flights available from nearby Benbecula Airport. The area attracts steady interest from buyers seeking rural homes, holiday properties and development opportunities, making it a strong setting for a project of this scale.

Local Authority

Comhairle nan Eilean Siar

Important Notice to Prospective Buyers:

We draw your attention to the Special Conditions of Sale within the Legal Pack, referring to other charges in addition to the purchase price which may become payable. Such costs may include Search Fees, reimbursement of Sellers costs and Legal Fees, and Transfer Fees amongst others.

Additional Fees

Administration Charge - 3.6% inc VAT of the purchase price, subject to a minimum of £3600 inc VAT, payable on exchange of contracts.

Disbursements - Please see the legal pack for any disbursements listed that may become payable by the purchaser on completion.

View Larger Map

Disclaimer: The map preview provided above is for general guidance only and may not accurately reflect the exact location or surrounding buildings. Prospective buyers and interested parties are strongly advised to independently verify the precise location and surroundings before bidding.