For Sale By Auction | 14:00, 21 October 2025 | Lot 7

Flat 2, 19 Elm Road, Mannamead, Plymouth, Devon PL4 7AX

*Guide | £70,000 (plus fees)

  • Ground Flat
  • 1 Bedroom
  • Tenure: Freehold

Call the team on 01752 474200 for more information

Auction Date

Tue 21/10/2025

Auction Time

14:00

Auction Venue

Live Stream

Residential for Improvement

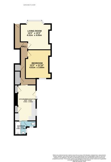
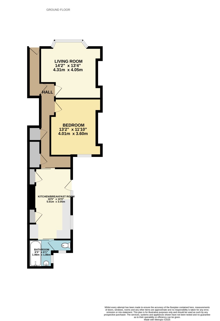
Vacant ground floor flat located in popular residential location. Accommodation comprises of: communal hallway, hall, living room, double bedroom, kitchen/breakfast room, W/C, bathroom, rear courtyard. UPVCu D/G. GCH.

Tenure

Freehold

AUCTIONEERS NOTE

Sale includes ground floor leasehold flat with 958 years remaining and freehold of whole building.

ACCOMMODATION

Communal Hallway Hall Living Room - 14'2" x 13'4" (4.31m x 4.05m) Bedroom - 13'2" x 11'10" (4.01m x 3.60m) Kitchen/Breakfast Room - 16'5" x 10'0" (5.01m x 3.05m) Bathroom - 6'5" x 5'6" (1.95m x 1.68m) W/C

VIEWINGS

Regular block viewing sessions will be provided in the lead up to the auction. Please telephone Auction House South West on 03456 461361 to request a viewing.

FULL DETAILS

Photographs, Dimensions, Floor Plans and Area Measurements (when available) are included within our full details online on our website. All published information is to aid identification of the property and is not necessarily to scale.

NOTICE TO BIDDER

Please be aware that if your Bid is successful on Auction day the exchange of contracts will happen immediately after the Auction.

Energy Efficiency Rating (EPC)

Current Rating D64

Local Authority

Plymouth City Council

Solicitors

Bright Solicitors LLP, Ref: Jo Russell, Tel: 01752 388883

Important Notice to Prospective Buyers:

We draw your attention to the Special Conditions of Sale within the Legal Pack, referring to other charges in addition to the purchase price which may become payable. Such costs may include Search Fees, reimbursement of Sellers costs and Legal Fees, and Transfer Fees amongst others.

Additional Fees

Administration Charge - £1200 inc VAT payable on exchange of contracts.

Disbursements - Please see the legal pack for any disbursements listed that may become payable by the purchaser on completion.

View Larger Map

Disclaimer: The map preview provided above is for general guidance only and may not accurately reflect the exact location or surrounding buildings. Prospective buyers and interested parties are strongly advised to independently verify the precise location and surroundings before bidding.