Sold Prior | Lot 7

143 Henson Park, Chard, Somerset TA20 1NL

Sold Prior

  • Terraced House
  • 2 Bedrooms
  • Tenure: Freehold

Call the team on 0117 299 9889 for more information

Auction Date

Wed 11/02/2026

Auction Time

11:00

Auction Venue

Live Stream

Terraced House

A two-bedroom property in Chard, Somerset. The accommodation comprises of a living room, kitchen, two double bedrooms and a bathroom. Externally there is an outhouse, front and rear gardens and on road parking.

Tenure

Freehold

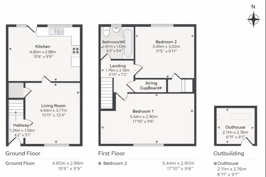
ACCOMMODATION

Living Room: 4.84m x 3.77m Kitchen: 4.80m x 2.98m Bedroom One: 5.44m x 2.90m Bedroom Two: 3.49m 3.02m Bathroom: 1.87m x 1.63m Outhouse: 2.11m x 2.76m

FULL DETAILS

Photographs, Dimensions, Floor Plans and Area Measurements (when available) are included within our full details online on our website. All published information is to aid identification of the property and is not necessarily to scale.

VIEWINGS

Please telephone Auction House South West on 03456 461361 to request a viewing.

NOTICE TO BIDDER

Please be aware that if your bid is successful on auction day the exchange of contracts will happen immediately after the auction.

Energy Efficiency Rating (EPC)

Current Rating C74

Local Authority

South Somerset District Council

Solicitors

Capsticks LLP, Staple House, Ref: Capsticks LLP, Tel: 01962 678 395

Important Notice to Prospective Buyers:

We draw your attention to the Special Conditions of Sale within the Legal Pack, referring to other charges in addition to the purchase price which may become payable. Such costs may include Search Fees, reimbursement of Sellers costs and Legal Fees, and Transfer Fees amongst others.

Additional Fees

Buyer's Premium - £1500 inc VAT payable on exchange of contracts.

Administration Charge - £1200 inc VAT payable on exchange of contracts.

Disbursements - Please see the legal pack for any disbursements listed that may become payable by the purchaser on completion.

View Larger Map

Disclaimer: The map preview provided above is for general guidance only and may not accurately reflect the exact location or surrounding buildings. Prospective buyers and interested parties are strongly advised to independently verify the precise location and surroundings before bidding.