For Sale By Auction | 11:00, 25 March 2026 | Lot 15

13-15 Market Place, Camelford, Cornwall PL32 9PD

*Guide | £125,000 (plus fees)

  • Commercial Property
  • 4 Bedrooms
  • Tenure: Freehold

Call the team on 01872 484888 for more information

Auction Date

Wed 25/03/2026

Auction Time

11:00

Auction Venue

Live Stream

Mixed Use Commercial Investment

A centrally located commercial property in the town of Camelford. The ground floor comprises a vacant retail shop with an office, storeroom, and staff facilities. The first floor provides a four bedroom flat, offering additional accommodation or investment potential. Externally, the property benefits from outbuildings, providing useful ancillary or storage space.

Tenure

Freehold

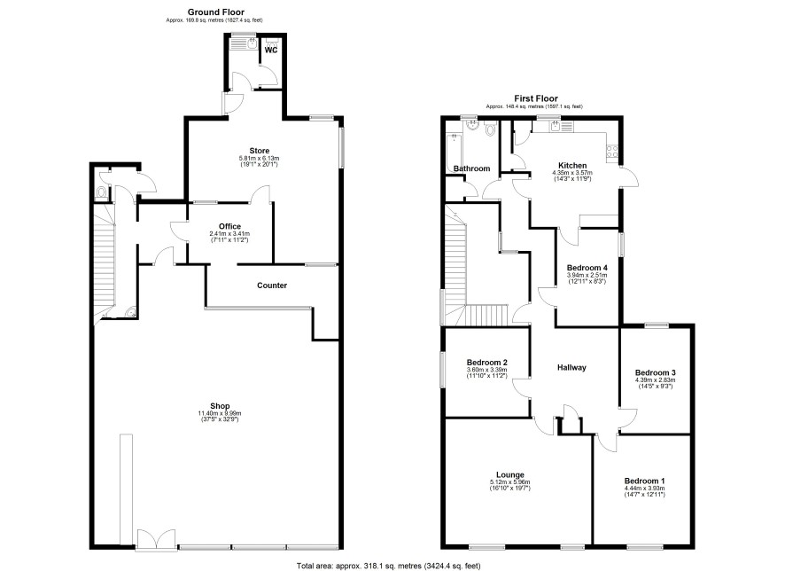
ACCOMMODATION

SHOP Shop Front: 11.40m x 9.99m Office: 2.41m x 3.41m Store: 5.81m x 6.13m WC One WC Two FLAT Kitchen: 4.35m x 3.57m Bathroom Lounge: 5.12m x 5.96m Bedroom One: 4.44m x 3.93m Bedroom Two: 3.60m x 3.39m Bedroom Three: 4.39m x 2.83m Bedroom Four: 3.94m x 2.51m

FULL DETAILS

Photographs, Dimensions, Floor Plans and Area Measurements (when available) are included within the full property details, online, via our website. All published information is to aid identification of the property and is not necessarily to scale.

VIEWINGS

Regular block viewing sessions will be provided in the lead up to the auction. Please telephone Auction House South West on 03456 461361 to request a viewing.

NOTICE TO BIDDER

Please be aware that if your bid is successful on auction day the exchange of contracts will happen immediately after the auction.

Energy Efficiency Rating (EPC)

Current Rating EPC D85

Local Authority

Cornwall County Council

Solicitors

Wolferstans Solicitors, Ref: Ebenezer Ola, Tel: DL 01752 292325 / 01752 292318

Important Notice to Prospective Buyers:

We draw your attention to the Special Conditions of Sale within the Legal Pack, referring to other charges in addition to the purchase price which may become payable. Such costs may include Search Fees, reimbursement of Sellers costs and Legal Fees, and Transfer Fees amongst others.

Additional Fees

Buyer's Premium - £600 inc VAT payable on exchange of contracts.

Administration Charge - £1200 inc VAT payable on exchange of contracts.

Disbursements - Please see the legal pack for any disbursements listed that may become payable by the purchaser on completion.

View Larger Map

Disclaimer: The map preview provided above is for general guidance only and may not accurately reflect the exact location or surrounding buildings. Prospective buyers and interested parties are strongly advised to independently verify the precise location and surroundings before bidding.