For Sale By Auction | 11:00, 25 March 2026 | Lot 31

10 Ridgeway Heights, Ridgeway Road, Torquay, Devon TQ1 2ND

*Guide | £70,000 (plus fees)

  • Flat
  • 2 Bedrooms
  • Tenure: Leasehold.

Call the team on 01752 474200 for more information

Auction Date

Wed 25/03/2026

Auction Time

11:00

Auction Venue

Live Stream

Two Bedroom Flat

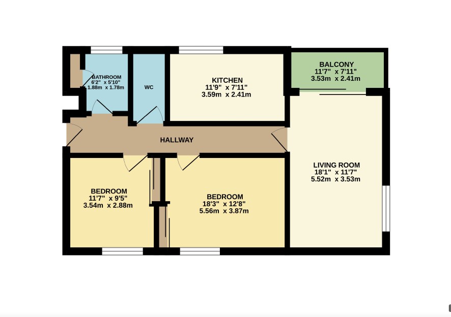
Third floor flat in the Lincombes area of Torquay, comprising two double bedrooms, a kitchen, a lounge-diner, a shower room with separate WC, and a private balcony with sea views. The purpose built accommodation benefits from lift access.

Tenure

Leasehold.

AUCTIONEERS NOTE

The property has secure underground parking. The management company has advised that all spaces are currently allocated and a waiting list is in place. Any purchaser seeking a parking space will be required to apply to the management company and join the waiting list.

ACCOMMODATION

Kitchen: 3.59m x 2.41m Living Room: 5.52m x 3.53m Bedroom One: 5.56m x 3.87m Bedroom Two: 3.54m x 2.88m Bathroom: 1.88m x 1.78m WC Balcony: 3.53m x 2.41m

FULL DETAILS

Photographs, Dimensions, Floor Plans and Area Measurements (when available) are included within the full property details, online, via our website. All published information is to aid identification of the property and is not necessarily to scale.

VIEWINGS

Regular block viewing sessions will be provided in the lead up to the auction. Please telephone Auction House South West on 03456 461361 to request a viewing.

NOTICE TO BIDDER

Please be aware that if your bid is successful on auction day the exchange of contracts will happen immediately after the auction.

Energy Efficiency Rating (EPC)

Current Rating C75

Local Authority

Torbay Council

Solicitors

Asus Investments Ltd., Ref: Maneli Mirhady

Important Notice to Prospective Buyers:

We draw your attention to the Special Conditions of Sale within the Legal Pack, referring to other charges in addition to the purchase price which may become payable. Such costs may include Search Fees, reimbursement of Sellers costs and Legal Fees, and Transfer Fees amongst others.

Additional Fees

Buyer's Premium - £900 inc VAT payable on exchange of contracts.

Administration Charge - £1200 inc VAT payable on exchange of contracts.

Disbursements - Please see the legal pack for any disbursements listed that may become payable by the purchaser on completion.

View Larger Map

Disclaimer: The map preview provided above is for general guidance only and may not accurately reflect the exact location or surrounding buildings. Prospective buyers and interested parties are strongly advised to independently verify the precise location and surroundings before bidding.