For Sale By Auction | 2.30pm, 23 October 2025 | Lot 23

Flat 2, 139-141 Havant Road, Drayton, Portsmouth, Hampshire, PO6 2AA

*Guide | £115,000 (plus fees)

  • Apartment
  • 2 Bedrooms

Call the team on 01273 201989 for more information

Auction Date

Thu 23/10/2025

Auction Time

2.30pm

Auction Venue

Live Stream

Vacant 2 x Bedroom Flat

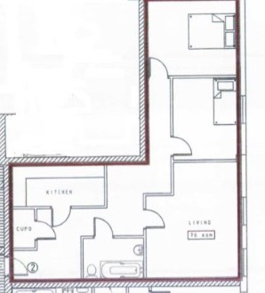
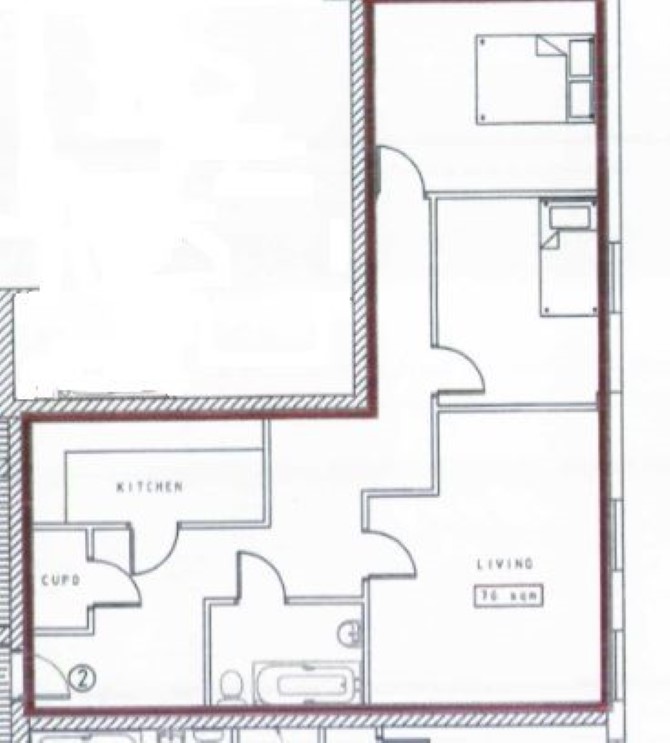
Leasehold first floor flat within a purpose built block of apartments. The property comprises of entrance hallway, kitchen, living room, bathroom and 2 x bedrooms. *The Auctioneers have not been able to inspect the property internally and therefore are unable to confirm the condition, or layout of Flat 2, 139-141 Havant Road* Situation The property is located above commercial premises on Havant Road. Havant Road offers a variety of shops, restaurant's & amenities. Cosham mainline railway station is approximately 1 mile from the property, (London Waterloo 2hrs). Location Pin (What3Words): helps.sudden.tracks https://what3words.com/helps.sudden.tracks Accommodation The Auctioneers have not been able to inspect the property internally and cannot confirm the accommodation/layout. Total Floor Area - 69 sq.m. (taken from EPC) NB WE DRAW YOUR ATTENTION TO THE SPECIAL CONDITIONS IN THE LEGAL PACK, REFERRING TO BUYERS PREMIUM OF £1,200 (INC VAT) AND OTHER CHARGES IN ADDITION TO THE PURCHASE PRICE. PLEASE ENSURE YOU READ THE SPECIAL CONDITIONS THOROUGHLY Tenure Leasehold - 125 year lease, from 1st January 2007 (approximately 106 years remaining) Ground rent - £150pa doubling every 25 years Council Tax - Band A EPC Rating - D

Lot Type

Residential

Important Notice to Prospective Buyers:

We draw your attention to the Special Conditions of Sale within the Legal Pack, referring to other charges in addition to the purchase price which may become payable. Such costs may include Search Fees, reimbursement of Sellers costs and Legal Fees, and Transfer Fees amongst others.

Additional Fees

Administration Charge - Purchasers will be required to pay an Administration fee of 1% (inc VAT) of the sale price, subject to a minimum of £1,750 (inc VAT)

Disbursements - Please see the legal pack for any disbursements listed that may become payable by the purchaser on completion.

View Larger Map

Disclaimer: The map preview provided above is for general guidance only and may not accurately reflect the exact location or surrounding buildings. Prospective buyers and interested parties are strongly advised to independently verify the precise location and surroundings before bidding.